$65,000
5 E Avenue D
Lancaster, CA, 93535
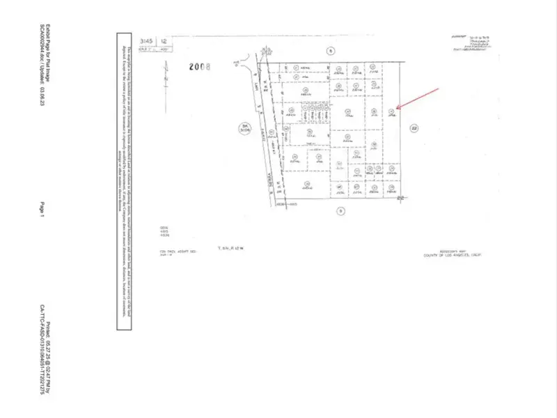
* 15+ Acres Zoned Residential / Rural – Redman/Lancaster Area – Rural Development Opportunity * Explore a rare opportunity to own over 15 acres of rural land in the city of Lancaster. Anchored by APN 3145-012-014, this parcel is “proposed” to be zoned RR-2.5 (Rural Residential, 2.5-acre minimum lot size), making it ideal for a custom homestead, off-grid living, or long-term investment. Located near 5th Street West and Avenue D, the area offers open, gently rolling desert terrain, sweeping views, and a peaceful atmosphere away from the noise of city life. Property Highlights:15+ acres of vacant rural land. Current Zoning: RL20 and Zoning Proposed: RR-2.5 – potential to subdivide into multiple 2.5-acre lots (buyer to verify). Flat to gently sloped terrain with native desert vegetation. Ideal for rural residential, equestrian, or agricultural uses. Relatively undeveloped area – no current utility connections. Water would require a well, and sewer would require a septic system.
Buyer must bring in all infrastructure (power, road improvements, etc.). Important Development Note: This parcel is currently located in unincorporated Los Angeles County but is proposed for annexation into the City of Lancaster. For information on development standards, future zoning, and annexation status, please contact the City of Lancaster Senior Planner of Community Development. LEGAL DESCRIPTION: For APN/Parcel ID(s):
3145-012-014
THE LAND REFERRED TO HEREIN BELOW IS SITUATED IN THE UNINCORPORATED AREA IN COUNTY OF LOS
ANGELES, STATE OF CALIFORNIA AND IS DESCRIBED AS FOLLOWS:
THE EAST HALF OF THE EAST HALF OF THE EAST HALF OF THE NORTHWEST QUARTER OF SECTION 22,
TOWNSHIP 8 NORTH, RANGE 12 WEST, SAN BERNARDINO BASE AND MERIDIAN, IN THE COUNTY OF LOS
ANGELES, STATE OF CALIFORNIA, ACCORDING TO THE OFFICIAL PLAT OF SAID LAND FILED IN THE DISTRICT
LAND OFFICE JUNE 19, 1856.
EXCEPTING THEREFROM THAT PORTION INCLUDED WITHIN THE SOUTH HALF OF THE SOUTHWEST
QUARTER OF THE NORTHWEST QUARTER OF SAID SECTION 22.
Buyer must bring in all infrastructure (power, road improvements, etc.). Important Development Note: This parcel is currently located in unincorporated Los Angeles County but is proposed for annexation into the City of Lancaster. For information on development standards, future zoning, and annexation status, please contact the City of Lancaster Senior Planner of Community Development. LEGAL DESCRIPTION: For APN/Parcel ID(s):
3145-012-014
THE LAND REFERRED TO HEREIN BELOW IS SITUATED IN THE UNINCORPORATED AREA IN COUNTY OF LOS
ANGELES, STATE OF CALIFORNIA AND IS DESCRIBED AS FOLLOWS:
THE EAST HALF OF THE EAST HALF OF THE EAST HALF OF THE NORTHWEST QUARTER OF SECTION 22,
TOWNSHIP 8 NORTH, RANGE 12 WEST, SAN BERNARDINO BASE AND MERIDIAN, IN THE COUNTY OF LOS
ANGELES, STATE OF CALIFORNIA, ACCORDING TO THE OFFICIAL PLAT OF SAID LAND FILED IN THE DISTRICT
LAND OFFICE JUNE 19, 1856.
EXCEPTING THEREFROM THAT PORTION INCLUDED WITHIN THE SOUTH HALF OF THE SOUTHWEST
QUARTER OF THE NORTHWEST QUARTER OF SAID SECTION 22.
Property Details
Price:
$65,000
MLS #:
OC25131186
Status:
Active
Beds:
0
Baths:
0
Type:
Land
Neighborhood:
laclancaster
Listed Date:
Jun 13, 2025
Lot Size:
668,646 sqft / 15.35 acres (approx)
Schools
Interior
Exterior
Community Features
RUR
Fencing
NO
View
SEE
Financial
Tax Year
2025
Taxes
$547
Get Out There, A Simply Outgoing Approach to Life. James Outland Jr. is one of those rare people who simply has an outgoing approach to life. No matter the activity… from dune buggy riding to skydiving to motorcycling to riding the local Pismo Beach waves… James Outland Jr. approaches life with a “just get out there and do it” kind of attitude. A zest for Life. James’ zest for life is obviously apparent in his many exciting hobbies. In his spare time, he loves riding dune buggies or hi…
More About JamesMortgage Calculator
Map
Community
- Address5 E Avenue D Lancaster CA
- CityLancaster
- CountyLos Angeles
- Zip Code93535
Similar Listings Nearby
Property Summary
- 5 E Avenue D Lancaster CA is a Land for sale in Lancaster, CA, 93535. It is listed for $65,000 and features 15 acres. To schedule a showing of MLS#oc25131186 at 5 E Avenue D in Lancaster, CA, contact your James Outland agent at 8057482262.
Courtesy of First Team Real Estate. Disclaimer: All data relating to real estate for sale on this page comes from the Broker Reciprocity (BR) of the California Regional Multiple Listing Service. Detailed information about real estate listings held by brokerage firms other than James Outland include the name of the listing broker. Neither the listing company nor James Outland shall be responsible for any typographical errors, misinformation, misprints and shall be held totally harmless. The Broker providing this data believes it to be correct, but advises interested parties to confirm any item before relying on it in a purchase decision. Copyright 2026. California Regional Multiple Listing Service. All rights reserved. 5 E Avenue D
Lancaster, CA





