$875,000
406 El Paseo
Lake Forest, CA, 92610
Beautifully updated 2-bedroom townhome WITH office/flex space and 2 full bathrooms located in the highly desirable gated community of El Paseo. Offering a rare layout with no one above or below, this two-story residence combines privacy, functionality, and modern upgrades in one of Foothill Ranch’s most sought-after neighborhoods with lower HOAs and resort style community amenities.
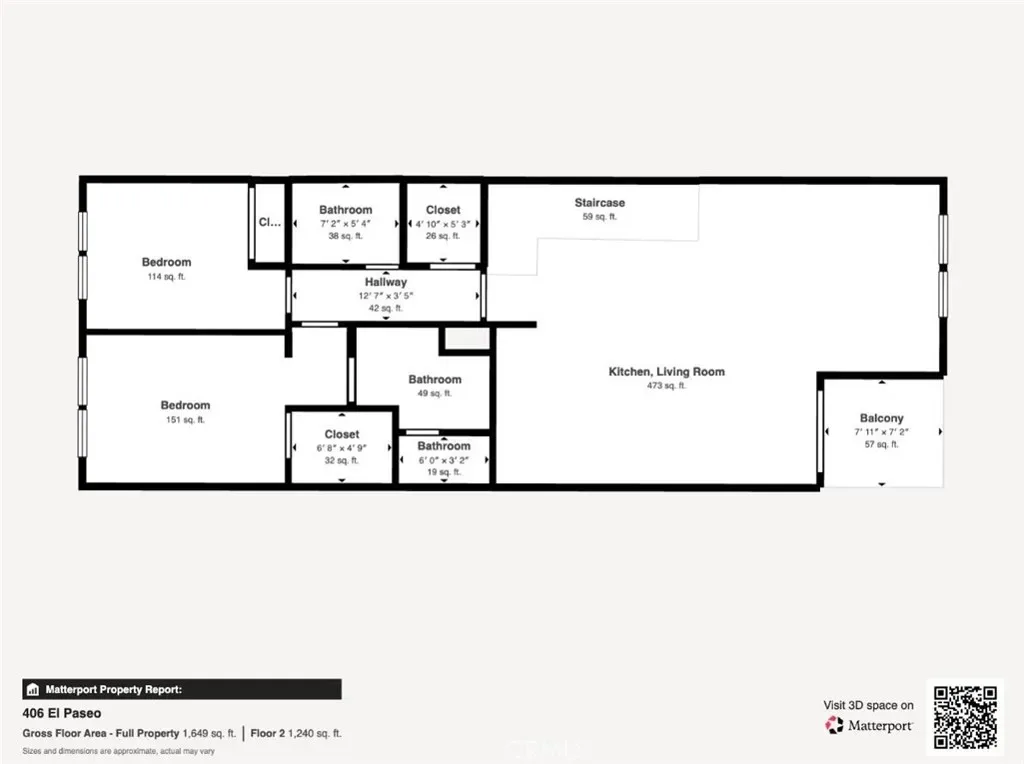
As you enter the home, you’re greeted by a spacious first-floor flex space—perfectly suited as a home office, gym, media room, or guest retreat, with the option to enclose for a third bedroom. This level also features direct access to the attached two-car garage, complete with EV hookup (charger not included).
Upstairs, the main living area is filled with natural light and designed for effortless living and entertaining. The open-concept layout seamlessly connects the kitchen, dining, and living spaces, flowing out to a private covered balcony—ideal for morning coffee or evening relaxation.
The kitchen is both stylish and functional, featuring granite countertops, a large center island with bar seating, white cabinetry, stainless steel appliances, a newer dishwasher, and updated black hardware and fixtures for a modern touch. Additional counter top space with matching counters and cabinets located adjacent to kitchen island with a wine fridge. Both bathrooms have been refreshed with brand new modern tile, enhancing the home’s clean, contemporary feel.
The primary suite offers a peaceful retreat with high ceilings, a walk-in closet, and a well-appointed en suite bath with dual sinks and a walk-in shower. A generously sized secondary bedroom and full hallway bath provide comfort and convenience for family or guests. Additional highlights include luxury vinyl flooring, plantation shutters, recessed lighting, ceiling fans, and a convenient 2-in-1 washer/dryer.
This home also features a 1-year-old Halo 5 whole-home water filtration system with a transferable 10-year warranty—providing added value and peace of mind.
Residents of El Paseo enjoy access to resort-style amenities including a pool, clubhouse, and playground, all with low HOA and no Mello Roos. Ideally located near parks, hiking and biking trails, shopping, dining, and the 241 Toll Road, this home offers the perfect blend of lifestyle and location.
A home that truly adapts to your lifestyle—modern, flexible, and move-in ready.
As you enter the home, you’re greeted by a spacious first-floor flex space—perfectly suited as a home office, gym, media room, or guest retreat, with the option to enclose for a third bedroom. This level also features direct access to the attached two-car garage, complete with EV hookup (charger not included).
Upstairs, the main living area is filled with natural light and designed for effortless living and entertaining. The open-concept layout seamlessly connects the kitchen, dining, and living spaces, flowing out to a private covered balcony—ideal for morning coffee or evening relaxation.
The kitchen is both stylish and functional, featuring granite countertops, a large center island with bar seating, white cabinetry, stainless steel appliances, a newer dishwasher, and updated black hardware and fixtures for a modern touch. Additional counter top space with matching counters and cabinets located adjacent to kitchen island with a wine fridge. Both bathrooms have been refreshed with brand new modern tile, enhancing the home’s clean, contemporary feel.
The primary suite offers a peaceful retreat with high ceilings, a walk-in closet, and a well-appointed en suite bath with dual sinks and a walk-in shower. A generously sized secondary bedroom and full hallway bath provide comfort and convenience for family or guests. Additional highlights include luxury vinyl flooring, plantation shutters, recessed lighting, ceiling fans, and a convenient 2-in-1 washer/dryer.
This home also features a 1-year-old Halo 5 whole-home water filtration system with a transferable 10-year warranty—providing added value and peace of mind.
Residents of El Paseo enjoy access to resort-style amenities including a pool, clubhouse, and playground, all with low HOA and no Mello Roos. Ideally located near parks, hiking and biking trails, shopping, dining, and the 241 Toll Road, this home offers the perfect blend of lifestyle and location.
A home that truly adapts to your lifestyle—modern, flexible, and move-in ready.
Property Details
Price:
$875,000
MLS #:
OC26059899
Status:
Active
Beds:
2
Baths:
2
Type:
Townhouse
Neighborhood:
fhfoothillranch
Listed Date:
Mar 31, 2026
Finished Sq Ft:
1,423
Lot Size:
30,563 sqft / 0.70 acres (approx)
Year Built:
2015
Schools
School District:
Saddleback Valley Unified
Elementary School:
Foothill Ranch
Middle School:
Rancho Santa Margarita
High School:
Trabucco Hills
Interior
Appliances
DW, MW, RF, GO
Bathrooms
2 Full Bathrooms
Cooling
CA
Flooring
VINY
Heating
CF
Interior Features
CF, ST, RECL, GRNC, LRBA, OFP, BL, HCEL
Laundry Features
IN, UL, DINC, WINC
Levels
U
Exterior
Accessibility Features
NO
Architectural Style
SPN
Attached Garage YN
1
Common Walls
_2CW
Community Features
SDW, SL, MTN, PARK, HIKI, BIKI
Construction Materials
BRK, STC, DWAL, FRM
Direction Faces
SE
Garage Spaces
2
Parking Spots
2
Parking Total
2
Patio And Porch Features
POF
Roof
TLE
Security Features
SD, COD, GC
Spa Features
AS
View
NO
Window Features
PLS, DPW
Financial
HOA Fee
$325
HOA Fee Frequency
MO
Get Out There, A Simply Outgoing Approach to Life. James Outland Jr. is one of those rare people who simply has an outgoing approach to life. No matter the activity… from dune buggy riding to skydiving to motorcycling to riding the local Pismo Beach waves… James Outland Jr. approaches life with a “just get out there and do it” kind of attitude. A zest for Life. James’ zest for life is obviously apparent in his many exciting hobbies. In his spare time, he loves riding dune buggies or hi…
More About JamesMortgage Calculator
Map
Current real estate data for Townhouse in Lake Forest as of Apr 12, 2026
12
Townhouse Listed
34
Avg DOM
577
Avg $ / SqFt
$782,524
Avg List Price
Community
- Address406 El Paseo Lake Forest CA
- SubdivisionOther (OTHR)
- CityLake Forest
- CountyOrange
- Zip Code92610
Similar Listings Nearby
Property Summary
- Located in the Other (OTHR) subdivision, 406 El Paseo Lake Forest CA is a Townhouse for sale in Lake Forest, CA, 92610. It is listed for $875,000 and features 2 beds, 2 baths, and has approximately 1,423 square feet of living space, and was originally constructed in 2015. The current price per square foot is $615. The average price per square foot for Townhouse listings in Lake Forest is $577. The average listing price for Townhouse in Lake Forest is $782,524. To schedule a showing of MLS#oc26059899 at 406 El Paseo in Lake Forest, CA, contact your James Outland agent at 8057482262.
Courtesy of First Team Real Estate. Disclaimer: All data relating to real estate for sale on this page comes from the Broker Reciprocity (BR) of the California Regional Multiple Listing Service. Detailed information about real estate listings held by brokerage firms other than James Outland include the name of the listing broker. Neither the listing company nor James Outland shall be responsible for any typographical errors, misinformation, misprints and shall be held totally harmless. The Broker providing this data believes it to be correct, but advises interested parties to confirm any item before relying on it in a purchase decision. Copyright 2026. California Regional Multiple Listing Service. All rights reserved. 406 El Paseo
Lake Forest, CA












































