$799,000
21135 Freeport
Huntington Beach, CA, 92646
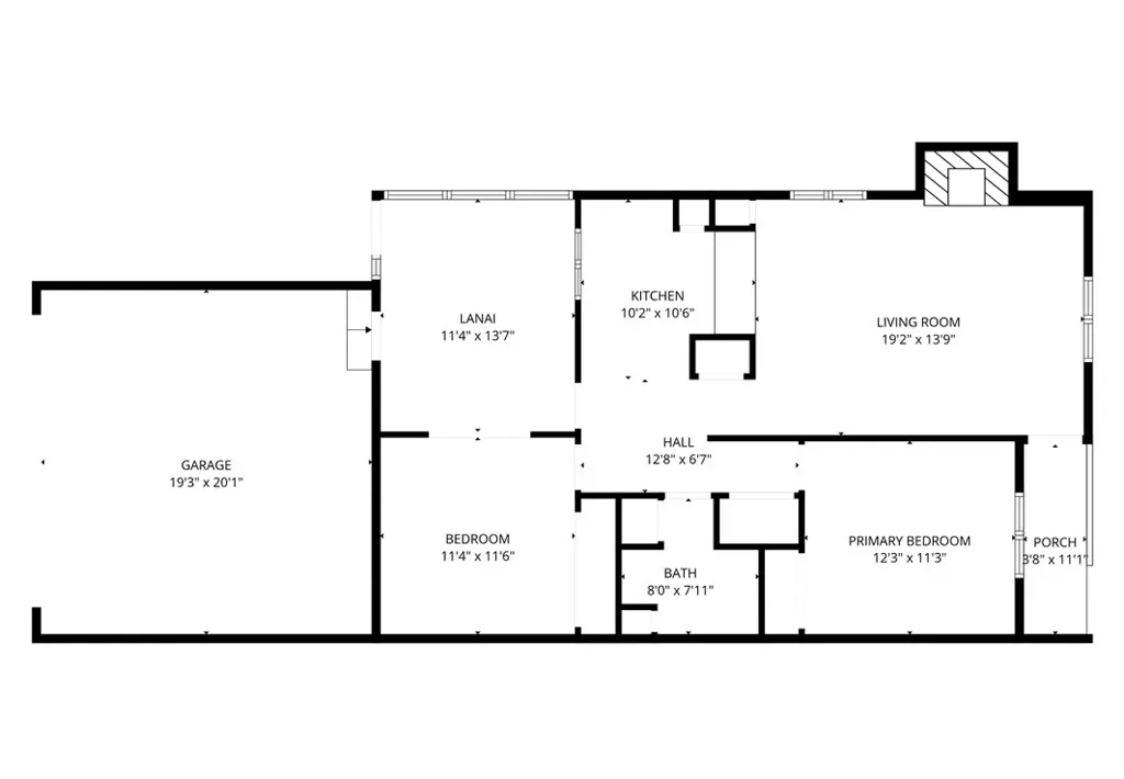
21135 Freeport Lane is a 2-bedroom, single-level end-unit residence with an attached two-car garage and a permitted enclosed lanai adding approximately 120 square feet, bringing the total living space to about 1,044 square feet. Ideally located in Huntington Beach just minutes from the ocean, the home offers a functional floor plan and an excellent opportunity for a buyer to add cosmetic updates while enjoying a beach-close lifestyle.
The living room is centered around a classic brick fireplace and flows naturally into the dining area and kitchen, creating a comfortable space for everyday living and entertaining. Large windows throughout the home provide abundant natural light. Several key systems have already been updated, including a furnace (approximately 3 years old), tankless water heater, newer garage door, washer and dryer, and flooring installed about six years ago, providing a solid foundation for the next owner to personalize the interior finishes. Residents of Surfside Homes by the Sea enjoy amenities including two pools, two remodeled clubhouses, playground areas, a basketball court, walking trails, and BBQ and picnic areas, all complemented by refreshing coastal breezes. The neighborhood is also known for its views of the Huntington Beach Air Show and Fourth of July fireworks. Conveniently located near Beach Promenade Shopping Center, with restaurants, shops, and everyday services, and just a short distance from the Huntington Beach Pier, Main Street, and the beach, this home represents a great opportunity to own in one of Huntington Beach’s desirable beach-close communities.
The living room is centered around a classic brick fireplace and flows naturally into the dining area and kitchen, creating a comfortable space for everyday living and entertaining. Large windows throughout the home provide abundant natural light. Several key systems have already been updated, including a furnace (approximately 3 years old), tankless water heater, newer garage door, washer and dryer, and flooring installed about six years ago, providing a solid foundation for the next owner to personalize the interior finishes. Residents of Surfside Homes by the Sea enjoy amenities including two pools, two remodeled clubhouses, playground areas, a basketball court, walking trails, and BBQ and picnic areas, all complemented by refreshing coastal breezes. The neighborhood is also known for its views of the Huntington Beach Air Show and Fourth of July fireworks. Conveniently located near Beach Promenade Shopping Center, with restaurants, shops, and everyday services, and just a short distance from the Huntington Beach Pier, Main Street, and the beach, this home represents a great opportunity to own in one of Huntington Beach’s desirable beach-close communities.
Property Details
Price:
$799,000
MLS #:
NP26049049
Status:
Active
Beds:
2
Baths:
1
Type:
Single Family
Subtype:
Single Family Residence
Subdivision:
Surfside SURF
Neighborhood:
14southhuntingtonbeach
Listed Date:
Mar 31, 2026
Finished Sq Ft:
924
Lot Size:
1,980 sqft / 0.05 acres (approx)
Year Built:
1964
Schools
School District:
Huntington Beach Union High
Interior
Appliances
DW, EO, ER, HOD
Bathrooms
1 Full Bathroom
Cooling
CA
Flooring
TILE, LAM
Heating
CF
Laundry Features
IG, DINC, WINC
Levels
A
Main Level Bathrooms
1
Main Level Bedrooms
2
Exterior
Attached Garage YN
1
Common Walls
_1CW
Community Features
SDW, SL, CRB
Garage Spaces
2
Parking Spots
2
Parking Total
2
View
NO
Financial
HOA Fee
$399
HOA Fee Frequency
MO
Get Out There, A Simply Outgoing Approach to Life. James Outland Jr. is one of those rare people who simply has an outgoing approach to life. No matter the activity… from dune buggy riding to skydiving to motorcycling to riding the local Pismo Beach waves… James Outland Jr. approaches life with a “just get out there and do it” kind of attitude. A zest for Life. James’ zest for life is obviously apparent in his many exciting hobbies. In his spare time, he loves riding dune buggies or hi…
More About JamesMortgage Calculator
Map
Current real estate data for Single Family in Huntington Beach as of Apr 11, 2026
490
Single Family Listed
66
Avg DOM
485
Avg $ / SqFt
$1,252,708
Avg List Price
Community
- Address21135 Freeport Huntington Beach CA
- SubdivisionSurfside (SURF)
- CityHuntington Beach
- CountyOrange
- Zip Code92646
Similar Listings Nearby
Property Summary
- Located in the Surfside (SURF) subdivision, 21135 Freeport Huntington Beach CA is a Single Family for sale in Huntington Beach, CA, 92646. It is listed for $799,000 and features 2 beds, 1 baths, and has approximately 924 square feet of living space, and was originally constructed in 1964. The current price per square foot is $865. The average price per square foot for Single Family listings in Huntington Beach is $485. The average listing price for Single Family in Huntington Beach is $1,252,708. To schedule a showing of MLS#np26049049 at 21135 Freeport in Huntington Beach, CA, contact your James Outland agent at 8057482262.
Courtesy of Pacific Sotheby’s Int’l Realty. Disclaimer: All data relating to real estate for sale on this page comes from the Broker Reciprocity (BR) of the California Regional Multiple Listing Service. Detailed information about real estate listings held by brokerage firms other than James Outland include the name of the listing broker. Neither the listing company nor James Outland shall be responsible for any typographical errors, misinformation, misprints and shall be held totally harmless. The Broker providing this data believes it to be correct, but advises interested parties to confirm any item before relying on it in a purchase decision. Copyright 2026. California Regional Multiple Listing Service. All rights reserved. 21135 Freeport
Huntington Beach, CA























