$670,000
1581 Hackney ST
Hemet, CA, 92543
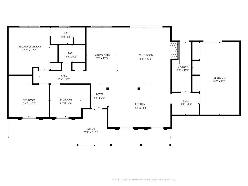
Welcome to 1581 Hackney St. This home is a must see! It offers almost an acre (.87) of outdoor living, great for all your toys! Remodeled interior with a light and airy open concept. Laminate flooring throughout, new quartz countertops, installed can lighting, freshly painted kitchen cabinets that offer plenty of cupboard space, accent barn wood pillars on island, cozy fireplace with hearth. New double pane window and slider, new front door. All 3 bedrooms are ample in size and both master bathroom and guest bath room have been completely remodeled with tile and shiplap. New water heater 2025, roof re-done 2025, all new pool equipment 2026, home was replumbed 2021. whole house fan and mini split have been installed. The exterior has so much to offer built in Pergola with poured concrete 2026. Built in planters with benches. Property has a detached shop/garage that is 30×40 partially drywalled with electricity with 110 and 200 amp panel, and solar panels. Shop/garage also has a 30amp outlet on the exterior of the shop for RV hook up. Horse stall, chicken coop, play station and crossed fencing for horses will remain. All that and lets not forget the inground pool and spa for those hot summer Hemet days and nights. Schedule your private showing today
Property Details
Price:
$670,000
MLS #:
SW26055521
Status:
Active
Beds:
3
Baths:
2
Type:
Single Family
Subtype:
Single Family Residence
Neighborhood:
srcarsouthwestriversidecounty
Listed Date:
Mar 16, 2026
Finished Sq Ft:
1,439
Lot Size:
37,897 sqft / 0.87 acres (approx)
Year Built:
1973
Schools
School District:
Hemet Unified
Interior
Appliances
DW, GD, BIR
Bathrooms
2 Full Bathrooms
Cooling
WHF
Flooring
LAM
Heating
CF
Interior Features
CF, RECL, OFP, QTZC
Laundry Features
IR
Levels
A
Main Level Bathrooms
2
Main Level Bedrooms
3
Exterior
Architectural Style
RAN
Attached Garage YN
1
Common Walls
NCW
Community Features
STM
Construction Materials
STC
Fencing
CH, WD
Garage Spaces
3
Other Structures
SHP, SH, SEGAR, SEGAD
Parking Spots
3
Parking Total
3
Patio And Porch Features
CON, CO
Roof
TLE
Security Features
SD, COD
Spa Features
GN, PVT
View
NO
Window Features
BLI, DPW
Financial
Get Out There, A Simply Outgoing Approach to Life. James Outland Jr. is one of those rare people who simply has an outgoing approach to life. No matter the activity… from dune buggy riding to skydiving to motorcycling to riding the local Pismo Beach waves… James Outland Jr. approaches life with a “just get out there and do it” kind of attitude. A zest for Life. James’ zest for life is obviously apparent in his many exciting hobbies. In his spare time, he loves riding dune buggies or hi…
More About JamesMortgage Calculator
Map
Current real estate data for Single Family in Hemet as of Apr 10, 2026
848
Single Family Listed
79
Avg DOM
201
Avg $ / SqFt
$322,202
Avg List Price
Community
- Address1581 Hackney ST Hemet CA
- CityHemet
- CountyRiverside
- Zip Code92543
Similar Listings Nearby
Property Summary
- 1581 Hackney ST Hemet CA is a Single Family for sale in Hemet, CA, 92543. It is listed for $670,000 and features 3 beds, 2 baths, and has approximately 1,439 square feet of living space, and was originally constructed in 1973. The current price per square foot is $466. The average price per square foot for Single Family listings in Hemet is $201. The average listing price for Single Family in Hemet is $322,202. To schedule a showing of MLS#sw26055521 at 1581 Hackney ST in Hemet, CA, contact your James Outland agent at 8057482262.
Courtesy of Feigen Realty Group. Disclaimer: All data relating to real estate for sale on this page comes from the Broker Reciprocity (BR) of the California Regional Multiple Listing Service. Detailed information about real estate listings held by brokerage firms other than James Outland include the name of the listing broker. Neither the listing company nor James Outland shall be responsible for any typographical errors, misinformation, misprints and shall be held totally harmless. The Broker providing this data believes it to be correct, but advises interested parties to confirm any item before relying on it in a purchase decision. Copyright 2026. California Regional Multiple Listing Service. All rights reserved. 1581 Hackney ST
Hemet, CA



































