$65,000
Egbert LN
Helendale, CA, 92342
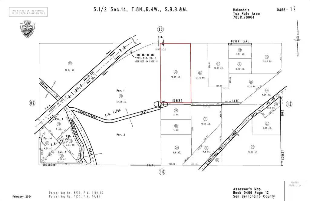
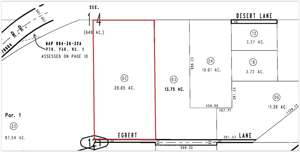
Here’s a large chunk of the high desert that’s “out there” and yet just minutes from lovely Silver Lake and a short hop to Victorville. The property is 20+ acres located just north of Helendale. It’s zoned “Rural Living”, which affords lots of possibilities from a single-family residence to agricultural and different smaller types of ranching. Build your own compound with barns and coops and let the kids grow up in the country while being really close to civilization. This is a great location for someone who has a dream and wants a place to make it come true. No address has yet been assigned to this parcel.
Property Details
Price:
$65,000
MLS #:
IG25278166
Status:
Active
Beds:
0
Baths:
0
Type:
Land
Neighborhood:
699notdefined
Listed Date:
Dec 18, 2025
Lot Size:
873,378 sqft / 20.05 acres (approx)
Schools
Interior
Exterior
Community Features
RS, RUR, BLM, HRS, GOLF, HIKI
View
DE, MT
Financial
Get Out There, A Simply Outgoing Approach to Life. James Outland Jr. is one of those rare people who simply has an outgoing approach to life. No matter the activity… from dune buggy riding to skydiving to motorcycling to riding the local Pismo Beach waves… James Outland Jr. approaches life with a “just get out there and do it” kind of attitude. A zest for Life. James’ zest for life is obviously apparent in his many exciting hobbies. In his spare time, he loves riding dune buggies or hi…
More About JamesMortgage Calculator
Map
Community
- AddressEgbert LN Helendale CA
- CityHelendale
- CountySan Bernardino
- Zip Code92342
Similar Listings Nearby
Property Summary
- Egbert LN Helendale CA is a Land for sale in Helendale, CA, 92342. It is listed for $65,000 and features 20 acres. To schedule a showing of MLS#ig25278166 at Egbert LN in Helendale, CA, contact your James Outland agent at 8057482262.
Courtesy of BRUIN TROJAN REALTORS, INC. Disclaimer: All data relating to real estate for sale on this page comes from the Broker Reciprocity (BR) of the California Regional Multiple Listing Service. Detailed information about real estate listings held by brokerage firms other than James Outland include the name of the listing broker. Neither the listing company nor James Outland shall be responsible for any typographical errors, misinformation, misprints and shall be held totally harmless. The Broker providing this data believes it to be correct, but advises interested parties to confirm any item before relying on it in a purchase decision. Copyright 2026. California Regional Multiple Listing Service. All rights reserved. Egbert LN
Helendale, CA


















