$695,000
967 Huber ST
Grover Beach, CA, 93433
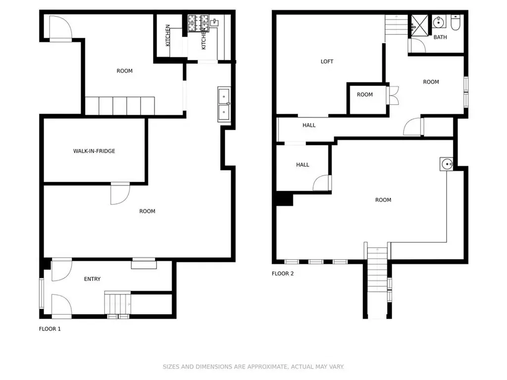
An outstanding location with major functionality and flexibility offered by this One-Of-A-Kind, Grover Beach industrial workspace. Located in the “Green Zone” Cannabis Business District with an established Licensed Commercial Kitchen space, this would make an ideal Type N infusion facility and/or Type 6 Manufacturing facility. It’s also centrally located for distribution throughout California and suitable for a Type 11 Distribution facility. Think outside the box! With the right vision, this commercial kitchen space could be a project for multiple uses: well-suited as a commissary, catering company, ghost kitchen, food truck or food delivery company, co-op, bakery, or other consumable related manufacturing or processing operation. This workspace has so much opportunity to have multiple operators/tenants who can function in this commercial building with approximately 2100 sq ft of work space and three phase electrical meters for heavy manufacturing. The main floor offers a large built-in smokehouse, multiple walk-in refrigeration/freezer units, three-compartment sink and wash area, and wall-to-wall floor drains for easy cleanup. The second floor provides an office space with a bathroom and shower along with ample storage spaces throughout. Buyers to satisfy themselves with all information regarding regulatory compliance with regard to cannabis. Seller may consider financing.
Property Details
Price:
$695,000
MLS #:
PI20190190
Status:
Pending
Beds:
0
Baths:
0
Type:
Commercial
Subtype:
Industrial
Neighborhood:
grvcgroverbeach
Listed Date:
Jan 11, 2022
Total Sq Ft:
2,168
Lot Size:
4,941 sqft / 0.11 acres (approx)
Year Built:
1989
Schools
Interior
Heating
NO
Laundry Features
NO
Exterior
Construction Materials
ALM
Roof
MTL
Security Features
SS
Financial
Get Out There, A Simply Outgoing Approach to Life. James Outland Jr. is one of those rare people who simply has an outgoing approach to life. No matter the activity… from dune buggy riding to skydiving to motorcycling to riding the local Pismo Beach waves… James Outland Jr. approaches life with a “just get out there and do it” kind of attitude. A zest for Life. James’ zest for life is obviously apparent in his many exciting hobbies. In his spare time, he loves riding dune buggies or hi…
More About JamesMortgage Calculator
Map
Current real estate data for Commercial in Grover Beach as of Dec 20, 2025
3
Commercial Listed
503
Avg DOM
$813,333
Avg List Price
Community
- Address967 Huber ST Grover Beach CA
- CityGrover Beach
- CountySan Luis Obispo
- Zip Code93433
Subdivisions in Grover Beach
Similar Listings Nearby
Property Summary
- 967 Huber ST Grover Beach CA is a Commercial for sale in Grover Beach, CA, 93433. It is listed for $695,000 To schedule a showing of MLS#pi20190190 at 967 Huber ST in Grover Beach, CA, contact your James Outland agent at 8057482262.
Courtesy of Modern Broker-Pismo Beach. Disclaimer: All data relating to real estate for sale on this page comes from the Broker Reciprocity (BR) of the California Regional Multiple Listing Service. Detailed information about real estate listings held by brokerage firms other than James Outland include the name of the listing broker. Neither the listing company nor James Outland shall be responsible for any typographical errors, misinformation, misprints and shall be held totally harmless. The Broker providing this data believes it to be correct, but advises interested parties to confirm any item before relying on it in a purchase decision. Copyright 2025. California Regional Multiple Listing Service. All rights reserved. 967 Huber ST
Grover Beach, CA































