$698,000
5220 Fairbanks
Fremont, CA, 94555
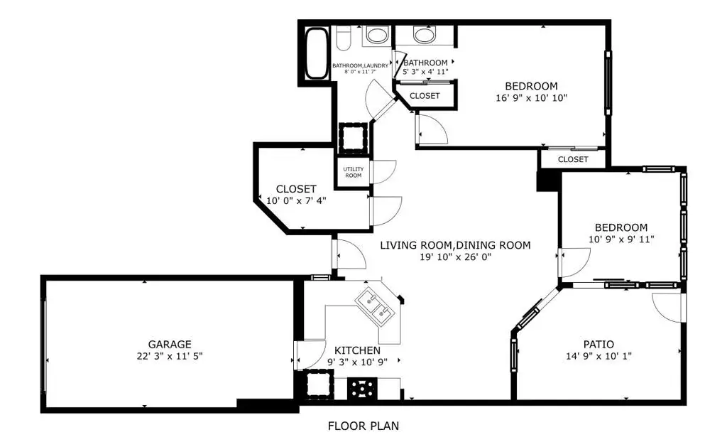
Price Reduction! Welcome home! A rare unit 2-bedroom, 1-bathroom condo located in the highly sought-after Forest Park neighborhood with award-winning schools (Forest Park Elem, Thornton Junior, American High; buyers need to verify). With 1000 sf of living space, this residence offers a cozy yet functional layout. The kitchen is designed for efficiency, featuring modern appliances and ample storage. Bathroom was upgraded, Open concept floor plan, plenty of natural light, hardwood flooring throughout, brand new recessed lights, fresh interior paint, move-in ready, spacious primary bedroom, Second bedroom makes a perfect office room or kids play room. One car garage with driveway to park another car. Convenient in-unit laundry set up with washer & dryer. Low HOA also covers water, community pool, greenbelt, common area & exterior maintenance. Steps away from Forest Park Elementary and Near Challenger School. Easy access to freeway, 880, 84, and minutes to the Facebook office, Easy access to major freeways, shopping (99Ranch Markets/ Costco/Sprouts), dining, and shuttle stops for Meta/Amazon/Apple. Ardenwood Historic Farm and hiking trails nearby. This home is a must see and it won’t be around long so don’t delay!
Property Details
Price:
$698,000
MLS #:
ML82019709
Status:
Pending
Beds:
2
Baths:
1
Type:
Condo
Subtype:
Condominium
Neighborhood:
699notdefined
Listed Date:
Sep 3, 2025
Finished Sq Ft:
1,000
Year Built:
1989
Schools
School District:
Fremont Unified
Elementary School:
Other
Middle School:
Other
High School:
Other
Interior
Appliances
GD, RF, GS, HOD
Bathrooms
1 Full Bathroom
Cooling
CA
Flooring
WOOD
Exterior
Parking Spots
1
Roof
TLE
Financial
HOA Fee
$360
HOA Frequency
MO
Get Out There, A Simply Outgoing Approach to Life. James Outland Jr. is one of those rare people who simply has an outgoing approach to life. No matter the activity… from dune buggy riding to skydiving to motorcycling to riding the local Pismo Beach waves… James Outland Jr. approaches life with a “just get out there and do it” kind of attitude. A zest for Life. James’ zest for life is obviously apparent in his many exciting hobbies. In his spare time, he loves riding dune buggies or hi…
More About JamesMortgage Calculator
Map
Community
- Address5220 Fairbanks Fremont CA
- CityFremont
- CountyAlameda
- Zip Code94555
Similar Listings Nearby
Property Summary
- 5220 Fairbanks Fremont CA is a Condo for sale in Fremont, CA, 94555. It is listed for $698,000 and features 2 beds, 1 baths, and has approximately 1,000 square feet of living space, and was originally constructed in 1989. The current price per square foot is $698. The average price per square foot for Condo listings in Fremont is $661. The average listing price for Condo in Fremont is $745,030. To schedule a showing of MLS#ml82019709 at 5220 Fairbanks in Fremont, CA, contact your James Outland agent at 8057482262.
Courtesy of Coldwell Banker Realty. Disclaimer: All data relating to real estate for sale on this page comes from the Broker Reciprocity (BR) of the California Regional Multiple Listing Service. Detailed information about real estate listings held by brokerage firms other than James Outland include the name of the listing broker. Neither the listing company nor James Outland shall be responsible for any typographical errors, misinformation, misprints and shall be held totally harmless. The Broker providing this data believes it to be correct, but advises interested parties to confirm any item before relying on it in a purchase decision. Copyright 2026. California Regional Multiple Listing Service. All rights reserved. 5220 Fairbanks
Fremont, CA









































