$1,699,888
38809 Judie WY
Fremont, CA, 94536
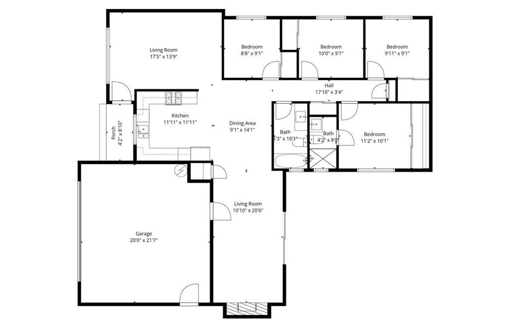
Welcome to this beautifully renovated home in the highly desirable Glenmoor neighborhood, one of the most sought-after communities known for its charming streets & excellent schools. Offering incredible value, this home features a popular floor plan w/ both a separate living room & a spacious family room w/ a cozy wood-burning fireplace, plus a generous backyard ideal for entertaining, relaxing, or gardening. Extensively remodeled throughout, the home features a brand-new kitchen w/ new appliances, fully renovated bathrooms, engineered wood flooring, Level 5 smooth walls, & recessed LED lighting throughout, creating a bright & modern living environment. Major system upgrades include Milgard retrofit windows, new roof, new furnace, new ducting, & new A/C, along w/ new attic insulation, a new fireplace, & all new interior & exterior doors. The exterior has been thoughtfully refreshed w/ new landscaping, front & back lawns w/ irrigation, new fencing, fresh stucco finish, & new concrete around the home, along w/ a new driveway & new garage door w/ tracks & motor. The garage is fully drywalled for a clean, finished look. Ideally located near parks, shopping, dining, commuter routes, & top-rated Fremont schools, this is a rare turnkey opportunity in Glenmoor ready to enjoy from day 1!
Property Details
Price:
$1,699,888
MLS #:
ML82038362
Status:
Pending
Beds:
4
Baths:
2
Type:
Single Family
Subtype:
Single Family Residence
Neighborhood:
699notdefined
Listed Date:
Mar 26, 2026
Finished Sq Ft:
1,424
Lot Size:
6,060 sqft / 0.14 acres (approx)
Year Built:
1962
Schools
School District:
Fremont Unified
Elementary School:
Other
Middle School:
Other
High School:
Washington
Interior
Bathrooms
2 Full Bathrooms
Cooling
NO
Heating
FA
Exterior
Attached Garage YN
1
Common Walls
NCW
Garage Spaces
2
Parking Spots
2
Parking Total
2
Roof
CMP, SHN
Financial
Get Out There, A Simply Outgoing Approach to Life. James Outland Jr. is one of those rare people who simply has an outgoing approach to life. No matter the activity… from dune buggy riding to skydiving to motorcycling to riding the local Pismo Beach waves… James Outland Jr. approaches life with a “just get out there and do it” kind of attitude. A zest for Life. James’ zest for life is obviously apparent in his many exciting hobbies. In his spare time, he loves riding dune buggies or hi…
More About JamesMortgage Calculator
Map
Current real estate data for Single Family in Fremont as of Apr 06, 2026
53
Single Family Listed
32
Avg DOM
870
Avg $ / SqFt
$1,455,296
Avg List Price
Community
- Address38809 Judie WY Fremont CA
- CityFremont
- CountyAlameda
- Zip Code94536
Similar Listings Nearby
Property Summary
- 38809 Judie WY Fremont CA is a Single Family for sale in Fremont, CA, 94536. It is listed for $1,699,888 and features 4 beds, 2 baths, and has approximately 1,424 square feet of living space, and was originally constructed in 1962. The current price per square foot is $1,194. The average price per square foot for Single Family listings in Fremont is $870. The average listing price for Single Family in Fremont is $1,455,296. To schedule a showing of MLS#ml82038362 at 38809 Judie WY in Fremont, CA, contact your James Outland agent at 8057482262.
Courtesy of Compass. Disclaimer: All data relating to real estate for sale on this page comes from the Broker Reciprocity (BR) of the California Regional Multiple Listing Service. Detailed information about real estate listings held by brokerage firms other than James Outland include the name of the listing broker. Neither the listing company nor James Outland shall be responsible for any typographical errors, misinformation, misprints and shall be held totally harmless. The Broker providing this data believes it to be correct, but advises interested parties to confirm any item before relying on it in a purchase decision. Copyright 2026. California Regional Multiple Listing Service. All rights reserved. 38809 Judie WY
Fremont, CA















































































