$799,000
10348 West DR
Felton, CA, 95018
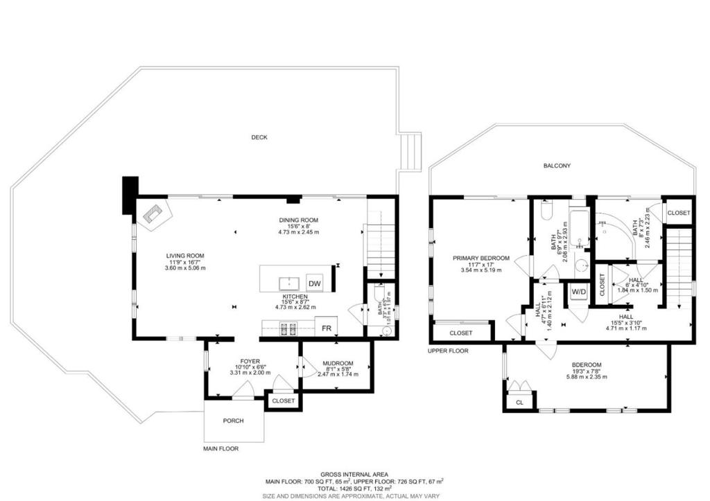
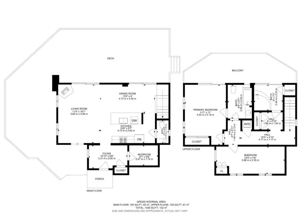
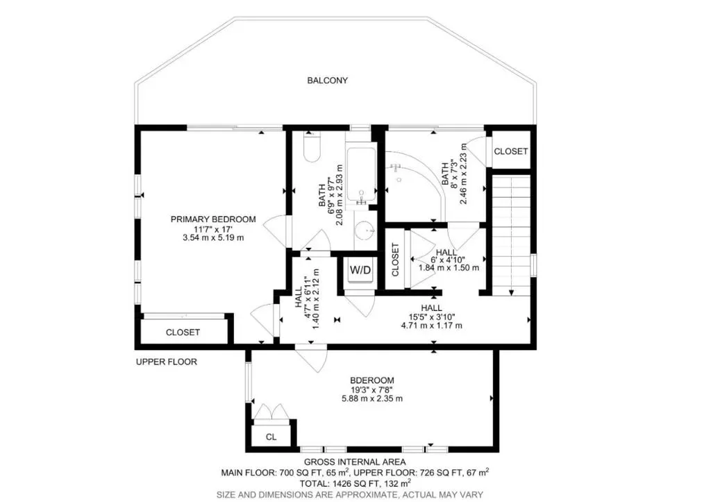
Welcome to Lompico! Where the mountain air greets you with a feeling of peaceful serenity and seclusion. Its rare to find a lot this size (98,838 SqFt) with lots of usable square footage. There’s enough space to add an ADU up to 1200sqft. This unique location near the end of West Rd. offers an extra level of privacy, gets lots of sunlight and boasts spectacular views of the valley. This lovely 2b/1.5ba gem has been elegantly updated inside and out, with almost $80k invested. The expansive wrap around deck and 2nd level balcony are perfect for entertaining or relaxing. The kitchen features new quartz countertops, new sink, new microwave, gas range, dishwasher, and refrigerator. The family room is seamlessly integrated with the dining area, creating an inviting space for gatherings, and features a fireplace that adds warmth & charm. Upstairs: both bedrooms, a full bathroom, washer/dryer, and the private jetted tub room with views. You’ll feel like you’re in your own private spa resort! Theres plenty of storage in the sheds, and lots of room under the deck. City water! Upgrades include: Fresh paint, refinished hardwood floors, brand new carpet, new light fixtures, repaved driveway, Tesla wall battery, and much more. Close to Felton restaurants & shops, and 1.5 miles to Loch Lomond.
Property Details
Price:
$799,000
MLS #:
ML82034686
Status:
Active
Beds:
2
Baths:
2
Type:
Single Family
Subtype:
Single Family Residence
Neighborhood:
699notdefined
Listed Date:
Feb 12, 2026
Finished Sq Ft:
1,426
Lot Size:
98,838 sqft / 2.27 acres (approx)
Year Built:
1992
Schools
School District:
Other
Elementary School:
Other
Middle School:
Other
High School:
Other
Interior
Appliances
DW, MW, RF
Bathrooms
1 Full Bathroom, 1 Half Bathroom
Cooling
NO
Flooring
TILE, WOOD, CARP
Heating
CF, FIR
Exterior
Roof
CMP
Financial
Get Out There, A Simply Outgoing Approach to Life. James Outland Jr. is one of those rare people who simply has an outgoing approach to life. No matter the activity… from dune buggy riding to skydiving to motorcycling to riding the local Pismo Beach waves… James Outland Jr. approaches life with a “just get out there and do it” kind of attitude. A zest for Life. James’ zest for life is obviously apparent in his many exciting hobbies. In his spare time, he loves riding dune buggies or hi…
More About JamesMortgage Calculator
Map
Current real estate data for Single Family in Felton as of Feb 14, 2026
14
Single Family Listed
164
Avg DOM
672
Avg $ / SqFt
$869,429
Avg List Price
Community
- Address10348 West DR Felton CA
- CityFelton
- CountySanta Cruz
- Zip Code95018
Similar Listings Nearby
Property Summary
- 10348 West DR Felton CA is a Single Family for sale in Felton, CA, 95018. It is listed for $799,000 and features 2 beds, 2 baths, and has approximately 1,426 square feet of living space, and was originally constructed in 1992. The current price per square foot is $560. The average price per square foot for Single Family listings in Felton is $672. The average listing price for Single Family in Felton is $869,429. To schedule a showing of MLS#ml82034686 at 10348 West DR in Felton, CA, contact your James Outland agent at 8057482262.
Courtesy of KW Bay Area Estates. Disclaimer: All data relating to real estate for sale on this page comes from the Broker Reciprocity (BR) of the California Regional Multiple Listing Service. Detailed information about real estate listings held by brokerage firms other than James Outland include the name of the listing broker. Neither the listing company nor James Outland shall be responsible for any typographical errors, misinformation, misprints and shall be held totally harmless. The Broker providing this data believes it to be correct, but advises interested parties to confirm any item before relying on it in a purchase decision. Copyright 2026. California Regional Multiple Listing Service. All rights reserved. 10348 West DR
Felton, CA































































































