$3,450,000
65311 San Jacinto
Desert Hot Springs, CA, 92240
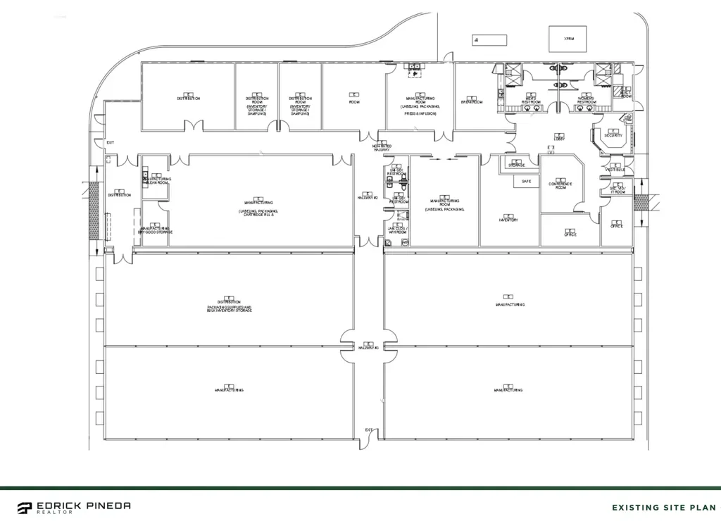
PRIME INDUSTRIAL CORRIDOR | NEAR I-10 & AMAZON | FLEX + EXPANSION LAND | 2.5 CORNER LOTSELLER FINANCING AVAILABLE!!!Positioned in the growing Industrial Corridor of Desert Hot Springs, Property presents a RARE OPPORTUNITY to acquire a +/-19,634 SF INDUSTRIAL WAREHOUSE on a +/-2.52-acre CORNER LOT with significant upside and flexibility.Zoned M (Light Manufacturing), the property SUPPORTS a WIDE RANGE OF USES including WAREHOUSE, DISTRIBUTION, MANUFACTURING, MULTI-OFFICE, FLEX INDUSTRIAL, and is well-suited for SPECIALIZED OPERATIONS such as CANNABIS, DATA INFRASTRUCTURE, OR EV-RELATED USES (subject to buyer verification and approvals).Property underwent MAJOR RENOVATIONS, including upgrades to PLUMBING, ELECTRICAL SYSTEMS, and extensisve clean up. The property is equipped with 277/480V 3-PHASE POWER and a diesel generator, providing infrastructure that may accommodate POWER-INTENSIVE USES or specialized operations.The functional layout includes MULTIPLE MANUFACTURING and STORAGE ROOMS, DISTRIBUTION/PACKAGING AREAS, INVENTORY SPACE, OFFICES, CONFERENCE ROOM, LOBBY, BREAK ROOM, and WASHROOMS, offering the flexibility to support single-tenant or multi-tenant configurations.The site is secured with GATED ACCESS, and an extensive security system equipment, making it well-positioned for regulated or high-security uses.A key differentiator is the +/-15,000+ SF OF ADDITIONAL BUILDABLE LAND, creating the opportunity to EXPAND STRUCTURES, ADD YARD SPACE, INSTALL EQUIPMENT, OR DEVELOP ADDITIONAL INCOME STREAMS–ideal for investors seeking to MAXIMIZE OCCUPANCY AND OPERATIONAL SCALABILITY.Strategically located NEAR I-10 and the AMAZON LOGISTICS FACILITY, the property benefits from strong regional logistics access and continued industrial growth.Ideal for OWNER-USER, FLEX INDUSTRIAL OPERATOR, or VALUE-ADD INVESTOR seeking a scalable asset with infrastructure and expansion potential.
Property Details
Price:
$3,450,000
MLS #:
219145307DA
Status:
Active
Beds:
0
Baths:
0
Type:
Commercial
Neighborhood:
340deserthotsprings
Listed Date:
Mar 24, 2026
Lot Size:
109,771 sqft / 2.52 acres (approx)
Year Built:
2018
Schools
Interior
Heating
CF
Laundry Features
IN
Exterior
Building Features
REC
Parking Spots
21
Parking Total
21
Security Features
AG, CRD, FS
Financial
Get Out There, A Simply Outgoing Approach to Life. James Outland Jr. is one of those rare people who simply has an outgoing approach to life. No matter the activity… from dune buggy riding to skydiving to motorcycling to riding the local Pismo Beach waves… James Outland Jr. approaches life with a “just get out there and do it” kind of attitude. A zest for Life. James’ zest for life is obviously apparent in his many exciting hobbies. In his spare time, he loves riding dune buggies or hi…
More About JamesMortgage Calculator
Map
Current real estate data for Commercial in Desert Hot Springs as of Apr 08, 2026
24
Commercial Listed
105
Avg DOM
$1,660,163
Avg List Price
Community
- Address65311 San Jacinto Desert Hot Springs CA
- CityDesert Hot Springs
- CountyRiverside
- Zip Code92240
Similar Listings Nearby
Property Summary
- 65311 San Jacinto Desert Hot Springs CA is a Commercial for sale in Desert Hot Springs, CA, 92240. It is listed for $3,450,000 To schedule a showing of MLS#219145307da at 65311 San Jacinto in Desert Hot Springs, CA, contact your James Outland agent at 8057482262.
Courtesy of LPT Realty. Disclaimer: All data relating to real estate for sale on this page comes from the Broker Reciprocity (BR) of the California Regional Multiple Listing Service. Detailed information about real estate listings held by brokerage firms other than James Outland include the name of the listing broker. Neither the listing company nor James Outland shall be responsible for any typographical errors, misinformation, misprints and shall be held totally harmless. The Broker providing this data believes it to be correct, but advises interested parties to confirm any item before relying on it in a purchase decision. Copyright 2026. California Regional Multiple Listing Service. All rights reserved. 65311 San Jacinto
Desert Hot Springs, CA































































































