$415,000
23771 Zuger Dr
Crestline, CA, 92325
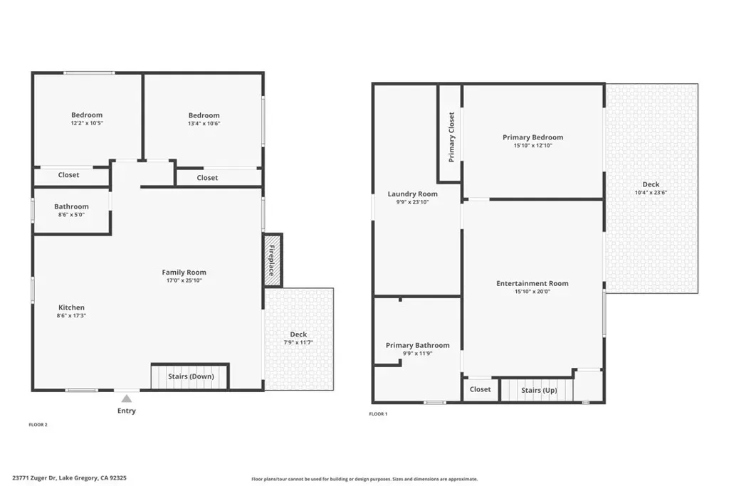
Welcome to this inviting three-bedroom, two full-bathroom home nestled among the pines of Crestline, offering 1,872 sq ft of living space on a 6,350 sq ft lot. Designed for comfort and versatility, the home features a desirable south facing orientation with multiple decks to enjoy the year round sunshine and tranquil forest views, and a completely Level 3 car parking deck attached to the property.
Step inside to a spacious family room where soaring wood-beamed ceilings, tongue and groove wood paneling, and a stunning rock cladded center fireplace create a warm mountain ambiance. Just off the main living area, double doors open to a covered upper patio…perfect for relaxing or entertaining. The kitchen offers ample cabinetry, updated lighting, and included appliances.
Upstairs, you’ll find two cozy bedrooms, each with ceiling fans, and a full bathroom that serves the level. Downstairs extends the living potential with a large game room currently outfitted with a pool table and dart area, with another opening to a second expansive south-facing deck. The lower level also features the primary suite with charming wood cladded walls, a ceiling fan, and a beautifully updated bath showcasing a subway tiled soaking tub and separate shower. Convenient laundry room access leads directly to the lower deck, offering some amazing seamless indoor-outdoor flow.. away from the elements.
Additional highlights include central heating and air conditioning, parking for up to three vehicles with a level entry deck, and prescriptive easement(s) benefiting the property.
Located on a quiet street yet close to town and Lake Gregory, this mountain getaway combines rustic character with modern comfort that is ideal for full-time living or a serene vacation escape.
Step inside to a spacious family room where soaring wood-beamed ceilings, tongue and groove wood paneling, and a stunning rock cladded center fireplace create a warm mountain ambiance. Just off the main living area, double doors open to a covered upper patio…perfect for relaxing or entertaining. The kitchen offers ample cabinetry, updated lighting, and included appliances.
Upstairs, you’ll find two cozy bedrooms, each with ceiling fans, and a full bathroom that serves the level. Downstairs extends the living potential with a large game room currently outfitted with a pool table and dart area, with another opening to a second expansive south-facing deck. The lower level also features the primary suite with charming wood cladded walls, a ceiling fan, and a beautifully updated bath showcasing a subway tiled soaking tub and separate shower. Convenient laundry room access leads directly to the lower deck, offering some amazing seamless indoor-outdoor flow.. away from the elements.
Additional highlights include central heating and air conditioning, parking for up to three vehicles with a level entry deck, and prescriptive easement(s) benefiting the property.
Located on a quiet street yet close to town and Lake Gregory, this mountain getaway combines rustic character with modern comfort that is ideal for full-time living or a serene vacation escape.
Property Details
Price:
$415,000
MLS #:
SB26000954
Status:
Active
Beds:
3
Baths:
2
Type:
Single Family
Subtype:
Single Family Residence
Neighborhood:
286crestlinearea
Listed Date:
Jan 9, 2026
Finished Sq Ft:
1,872
Lot Size:
6,350 sqft / 0.15 acres (approx)
Year Built:
1980
Schools
School District:
Rim of the World
Interior
Appliances
DW, GO, GR, GWH, WHU
Bathrooms
2 Full Bathrooms
Cooling
CA
Flooring
VINY, WOOD, CARP
Heating
FA, CF
Interior Features
_2STR, BL, BC
Laundry Features
IR, IN, SEE
Levels
U
Main Level Bathrooms
1
Main Level Bedrooms
1
Exterior
Accessibility Features
ES1
Architectural Style
COL, COT, CRF
Common Walls
NCW
Community Features
RUR, BLM, CRB, MTN, PSV, LAKE, WATE, HIKI, BIKI
Construction Materials
WOD
Fencing
CH
Patio And Porch Features
DK, PTO, PO, WOD, POR
Roof
ASP
Spa Features
NO
View
CN, CI, HI, MT, PA, PE, TW
Waterfront Features
LAK, LR, FSH
Financial
Get Out There, A Simply Outgoing Approach to Life. James Outland Jr. is one of those rare people who simply has an outgoing approach to life. No matter the activity… from dune buggy riding to skydiving to motorcycling to riding the local Pismo Beach waves… James Outland Jr. approaches life with a “just get out there and do it” kind of attitude. A zest for Life. James’ zest for life is obviously apparent in his many exciting hobbies. In his spare time, he loves riding dune buggies or hi…
More About JamesMortgage Calculator
Map
Current real estate data for Single Family in Crestline as of Apr 12, 2026
177
Single Family Listed
89
Avg DOM
269
Avg $ / SqFt
$386,943
Avg List Price
Community
- Address23771 Zuger Dr Crestline CA
- CityCrestline
- CountySan Bernardino
- Zip Code92325
Similar Listings Nearby
Property Summary
- 23771 Zuger Dr Crestline CA is a Single Family for sale in Crestline, CA, 92325. It is listed for $415,000 and features 3 beds, 2 baths, and has approximately 1,872 square feet of living space, and was originally constructed in 1980. The current price per square foot is $222. The average price per square foot for Single Family listings in Crestline is $269. The average listing price for Single Family in Crestline is $386,943. To schedule a showing of MLS#sb26000954 at 23771 Zuger Dr in Crestline, CA, contact your James Outland agent at 8057482262.
Courtesy of First Team Real Estate. Disclaimer: All data relating to real estate for sale on this page comes from the Broker Reciprocity (BR) of the California Regional Multiple Listing Service. Detailed information about real estate listings held by brokerage firms other than James Outland include the name of the listing broker. Neither the listing company nor James Outland shall be responsible for any typographical errors, misinformation, misprints and shall be held totally harmless. The Broker providing this data believes it to be correct, but advises interested parties to confirm any item before relying on it in a purchase decision. Copyright 2026. California Regional Multiple Listing Service. All rights reserved. 23771 Zuger Dr
Crestline, CA













































