$1,795,000
922 Armata Dr
Corona, CA, 92881
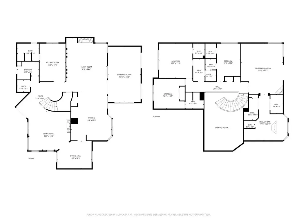
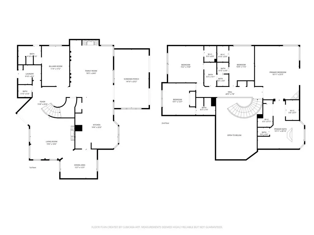
Welcome to this luxury estate in South Corona, marble flooring stretches across the main level, and a custom iron staircase sets an elegant tone. To your right a formal living room with fireplace opens to a formal dining room, both designed for hosting. Also on the main level, a flex room, perfect for a bedroom, office or playroom.
The heart of the home is the kitchen, fully renovated in 2021. It features a large center island, built-in refrigerator, custom cabinetry, and a walk-in pantry, plus a second pantry tucked beneath the stairs. Just beyond is the spacious family room with a second fireplace, ideal for everyday gathering. An enclosed sunroom expands the living space even further, providing year-round flexibility.
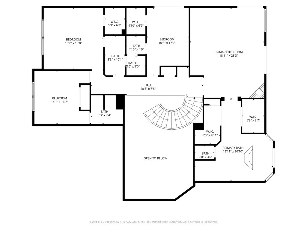
Upstairs, the primary suite is a retreat of its own with a fireplace, private balcony, dual walk-in closets, and a spa-inspired bathroom with Jacuzzi tub, separate vanities, and custom crown molding. Three additional guest bedrooms include attached bathrooms, two with walk-in closets, and one with its own en suite, ideal as a second upstairs primary.
Outside, the backyard is a private resort. A heated pool with waterfall, slide, grotto, and attached spa invites relaxation. A built-in outdoor kitchen with grill, two covered patios, gas firepit, and a full outdoor bathroom support seamless entertaining. A lighted sport court accommodates basketball and volleyball, while fruit trees, including guava, pomegranate, lemon, and lime, line the landscape.
The four-car garage includes two separate storage or flex rooms, and there’s ample space for RV and boat parking. With paid-off solar, water softener, and a location near top schools, shopping, and freeway access, this home delivers luxury and exclusivity one of Corona’s most desirable settings.
The heart of the home is the kitchen, fully renovated in 2021. It features a large center island, built-in refrigerator, custom cabinetry, and a walk-in pantry, plus a second pantry tucked beneath the stairs. Just beyond is the spacious family room with a second fireplace, ideal for everyday gathering. An enclosed sunroom expands the living space even further, providing year-round flexibility.
Upstairs, the primary suite is a retreat of its own with a fireplace, private balcony, dual walk-in closets, and a spa-inspired bathroom with Jacuzzi tub, separate vanities, and custom crown molding. Three additional guest bedrooms include attached bathrooms, two with walk-in closets, and one with its own en suite, ideal as a second upstairs primary.
Outside, the backyard is a private resort. A heated pool with waterfall, slide, grotto, and attached spa invites relaxation. A built-in outdoor kitchen with grill, two covered patios, gas firepit, and a full outdoor bathroom support seamless entertaining. A lighted sport court accommodates basketball and volleyball, while fruit trees, including guava, pomegranate, lemon, and lime, line the landscape.
The four-car garage includes two separate storage or flex rooms, and there’s ample space for RV and boat parking. With paid-off solar, water softener, and a location near top schools, shopping, and freeway access, this home delivers luxury and exclusivity one of Corona’s most desirable settings.
Property Details
Price:
$1,795,000
MLS #:
IG25278227
Status:
Active
Beds:
5
Baths:
5
Type:
Single Family
Subtype:
Single Family Residence
Neighborhood:
248corona
Listed Date:
Jan 24, 2026
Finished Sq Ft:
4,053
Lot Size:
31,799 sqft / 0.73 acres (approx)
Year Built:
2000
Schools
School District:
Corona-Norco Unified
Elementary School:
Susan B Anthony
Middle School:
Citrus Hills
High School:
Santiago
Interior
Appliances
DW, GD, RF, GS, FSR, _6BS, CO, DO, HOD
Bathrooms
4 Full Bathrooms, 1 Half Bathroom
Cooling
CA, DL
Flooring
TILE, LAM
Heating
CF
Laundry Features
IR, IN
Exterior
Community Features
SDW, STM, SL, SUB, CRB
Construction Materials
DWAL
Other Structures
SC, TC
Parking Spots
4
Roof
SPT
Security Features
SD, COD
Financial
Get Out There, A Simply Outgoing Approach to Life. James Outland Jr. is one of those rare people who simply has an outgoing approach to life. No matter the activity… from dune buggy riding to skydiving to motorcycling to riding the local Pismo Beach waves… James Outland Jr. approaches life with a “just get out there and do it” kind of attitude. A zest for Life. James’ zest for life is obviously apparent in his many exciting hobbies. In his spare time, he loves riding dune buggies or hi…
More About JamesMortgage Calculator
Map
Current real estate data for Single Family in Corona as of Feb 14, 2026
420
Single Family Listed
64
Avg DOM
335
Avg $ / SqFt
$729,835
Avg List Price
Community
- Address922 Armata Dr Corona CA
- SubdivisionOther (OTHR)
- CityCorona
- CountyRiverside
- Zip Code92881
Similar Listings Nearby
Property Summary
- Located in the Other (OTHR) subdivision, 922 Armata Dr Corona CA is a Single Family for sale in Corona, CA, 92881. It is listed for $1,795,000 and features 5 beds, 5 baths, and has approximately 4,053 square feet of living space, and was originally constructed in 2000. The current price per square foot is $443. The average price per square foot for Single Family listings in Corona is $335. The average listing price for Single Family in Corona is $729,835. To schedule a showing of MLS#ig25278227 at 922 Armata Dr in Corona, CA, contact your James Outland agent at 8057482262.
Courtesy of Keller Williams Realty. Disclaimer: All data relating to real estate for sale on this page comes from the Broker Reciprocity (BR) of the California Regional Multiple Listing Service. Detailed information about real estate listings held by brokerage firms other than James Outland include the name of the listing broker. Neither the listing company nor James Outland shall be responsible for any typographical errors, misinformation, misprints and shall be held totally harmless. The Broker providing this data believes it to be correct, but advises interested parties to confirm any item before relying on it in a purchase decision. Copyright 2026. California Regional Multiple Listing Service. All rights reserved. 922 Armata Dr
Corona, CA






































































