$150,000
454 K
Colton, CA, 92324
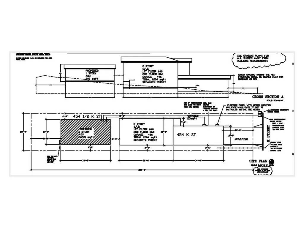
ATTENTION BUILDERS, DEVELOPERS, AND INVESTORS! Prime development opportunity in Colton. Skip the lengthy planning phases and fast-track your next project with this lot. This property comes with nearly approved plans for a brand-new two-story Single-Family Residence (1,508 sq. ft. living space + 525 sq. ft. attached garage) AND a detached Accessory Dwelling Unit (569 sq. ft.). The proposed ADU is smartly designed for privacy with its own entrance. Highly desirable alley access provides ultimate convenience and separation for both units, making it an ideal setup for multi-generational living or maximizing rental income. With the architectural and city design phases nearly complete, this site is perfectly positioned to build and sell, or build and hold for strong dual-income cash flow. Buyer to verify all permits, zoning, and plan status with the city. Don’t miss out on this project!
Property Details
Price:
$150,000
MLS #:
DW26058500
Status:
Active
Beds:
0
Baths:
0
Type:
Land
Neighborhood:
273colton
Listed Date:
Mar 23, 2026
Lot Size:
3,750 sqft / 0.09 acres (approx)
Schools
Interior
Exterior
Community Features
SUB
Fencing
CH
View
NE
Financial
Get Out There, A Simply Outgoing Approach to Life. James Outland Jr. is one of those rare people who simply has an outgoing approach to life. No matter the activity… from dune buggy riding to skydiving to motorcycling to riding the local Pismo Beach waves… James Outland Jr. approaches life with a “just get out there and do it” kind of attitude. A zest for Life. James’ zest for life is obviously apparent in his many exciting hobbies. In his spare time, he loves riding dune buggies or hi…
More About JamesMortgage Calculator
Map
Community
- Address454 K Colton CA
- CityColton
- CountySan Bernardino
- Zip Code92324
Similar Listings Nearby
Property Summary
- 454 K Colton CA is a Land for sale in Colton, CA, 92324. It is listed for $150,000 and features 0 acres. To schedule a showing of MLS#dw26058500 at 454 K in Colton, CA, contact your James Outland agent at 8057482262.
Courtesy of David Morales, Broker. Disclaimer: All data relating to real estate for sale on this page comes from the Broker Reciprocity (BR) of the California Regional Multiple Listing Service. Detailed information about real estate listings held by brokerage firms other than James Outland include the name of the listing broker. Neither the listing company nor James Outland shall be responsible for any typographical errors, misinformation, misprints and shall be held totally harmless. The Broker providing this data believes it to be correct, but advises interested parties to confirm any item before relying on it in a purchase decision. Copyright 2026. California Regional Multiple Listing Service. All rights reserved. 454 K
Colton, CA










