$435,000
686 E 7th ST
Chico, CA, 95928
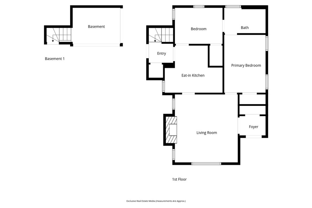
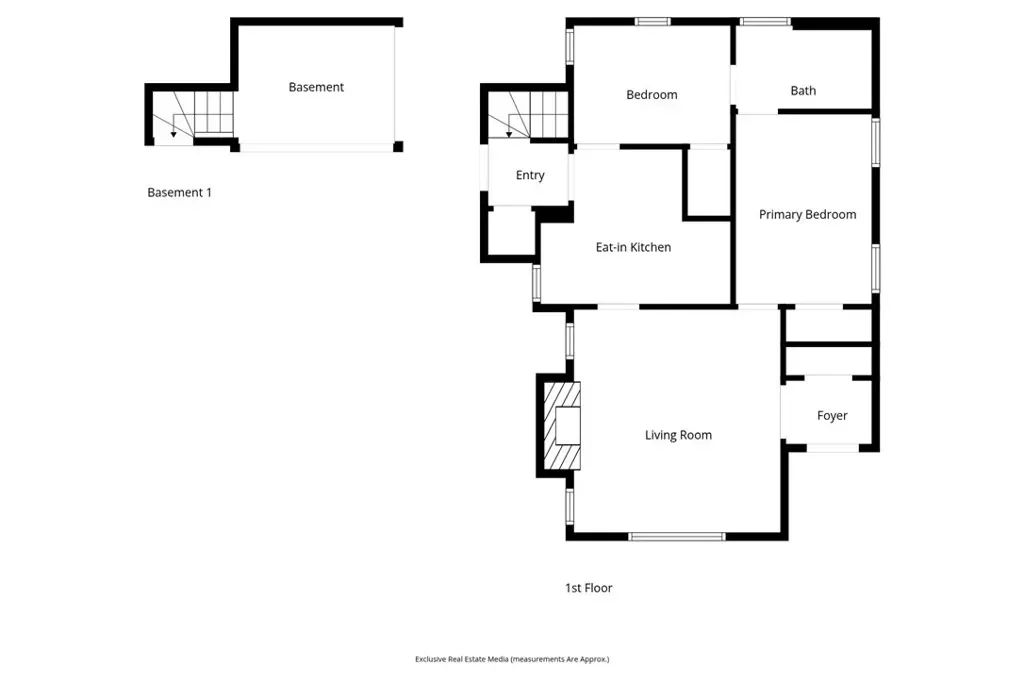
What a gem! Located in the heart of downtown Chico, this charming bungalow offers an incredible opportunity with two homes on one lot, just minutes from Bidwell Park, downtown markets and restaurants, and Chico State. The front home features 2 bedrooms and 1 bathroom and is filled with classic character. Wood flooring runs through most of the living spaces, complemented by beautiful wood-cased windows that keep the home light and bright. The cozy living room centers around a charming white rock fireplace—perfect for relaxing evenings. Just off the living room is an adorable, bright white kitchen with ample cabinet space and a sweet dining nook. A basement provides excellent additional storage. Between the two homes, you’ll find a spacious shared yard with a storage shed. The back unit is a darling 1 bedroom, 1 bathroom home with its own inviting front patio. Inside, natural light pours into the space, highlighting the high ceilings and a spacious living room complete with a charming window seat. The living area flows seamlessly into the kitchen, which features a large picture window and a peninsula countertop with seating. This unit has fresh white interior paint, dual-pane windows, private washer and dryer closet and its own private driveway with alley access. Whether you’re looking for a fantastic investment opportunity or a place to live in one unit and rent the other, this downtown Chico property offers flexibility, charm, and an unbeatable location.
Property Details
Price:
$435,000
MLS #:
SN26027847
Status:
Active
Beds:
3
Baths:
2
Type:
Single Family
Subtype:
Single Family Residence
Listed Date:
Feb 14, 2026
Finished Sq Ft:
1,202
Lot Size:
5,227 sqft / 0.12 acres (approx)
Year Built:
1942
Schools
School District:
Chico Unified
Interior
Appliances
GO, GR
Bathrooms
2 Full Bathrooms
Cooling
WW
Flooring
TILE, VINY, WOOD
Heating
FF, WL, FIR
Laundry Features
GAS, OUT, WH
Exterior
Architectural Style
BNG
Community Features
SDW, SL, CRB, CW
Other Structures
SH
Roof
CMP
Security Features
SD, COD
Financial
Get Out There, A Simply Outgoing Approach to Life. James Outland Jr. is one of those rare people who simply has an outgoing approach to life. No matter the activity… from dune buggy riding to skydiving to motorcycling to riding the local Pismo Beach waves… James Outland Jr. approaches life with a “just get out there and do it” kind of attitude. A zest for Life. James’ zest for life is obviously apparent in his many exciting hobbies. In his spare time, he loves riding dune buggies or hi…
More About JamesMortgage Calculator
Map
Current real estate data for Single Family in Chico as of Feb 15, 2026
340
Single Family Listed
80
Avg DOM
284
Avg $ / SqFt
$387,348
Avg List Price
Community
- Address686 E 7th ST Chico CA
- CityChico
- CountyButte
- Zip Code95928
Similar Listings Nearby
Property Summary
- 686 E 7th ST Chico CA is a Single Family for sale in Chico, CA, 95928. It is listed for $435,000 and features 3 beds, 2 baths, and has approximately 1,202 square feet of living space, and was originally constructed in 1942. The current price per square foot is $362. The average price per square foot for Single Family listings in Chico is $284. The average listing price for Single Family in Chico is $387,348. To schedule a showing of MLS#sn26027847 at 686 E 7th ST in Chico, CA, contact your James Outland agent at 8057482262.
Courtesy of Parkway Real Estate Co.. Disclaimer: All data relating to real estate for sale on this page comes from the Broker Reciprocity (BR) of the California Regional Multiple Listing Service. Detailed information about real estate listings held by brokerage firms other than James Outland include the name of the listing broker. Neither the listing company nor James Outland shall be responsible for any typographical errors, misinformation, misprints and shall be held totally harmless. The Broker providing this data believes it to be correct, but advises interested parties to confirm any item before relying on it in a purchase decision. Copyright 2026. California Regional Multiple Listing Service. All rights reserved. 686 E 7th ST
Chico, CA





























































































