$720,000
11285 Cherry AV
Cherry Valley, CA, 92223
Welcome to 11285 Cherry Ave in Cherry Valley; a rare opportunity to enjoy space, privacy, and the charm of country living while staying close to everything you need. Situated on over 1.14 acres of usable land, this versatile ranch-style property features two separate living units, making it perfect for extended families, multi-generational living, or a live-in-one, rent-the-other opportunity.
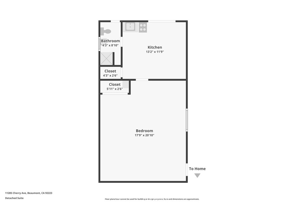
The main house offers approximately 1,639 sq ft of comfortable living space with a functional layout, an attached laundry area, and a garage that may offer the potential for a future Jr. ADU conversion, subject to buyer verification and city approval. The second unit offers approximately 576 sq ft, providing an excellent option for rental income, guest quarters, or private living space for family members.
The expansive lot provides plenty of room to enjoy a true ranch-style lifestyle, complete with fruit trees and open space for gardening, animals, outdoor entertaining, or future improvements. According to the city, the property may allow up to three structures on the lot, creating the potential to add another ADU, subject to buyer verification. There may also be the possibility of a parcel split, offering additional value and long-term potential.
This property is ideal for buyers looking to escape the busy city and enjoy a peaceful country setting while still being conveniently located near everyday amenities. Nearby you’ll find Beaumont High School, a local elementary school, and a nearby hospital for added convenience. The property also offers quick access to both the 60 and 10 freeways, making commuting easy. For outdoor lovers, Oak Glen is just a short drive away, offering hiking, apple orchards, seasonal festivals, and beautiful mountain scenery.
If you’ve been searching for a place where family can live together, enjoy open land, and experience the quiet charm of country life without being far from the city, 11285 Cherry Ave offers a unique opportunity to make that lifestyle a reality.
The main house offers approximately 1,639 sq ft of comfortable living space with a functional layout, an attached laundry area, and a garage that may offer the potential for a future Jr. ADU conversion, subject to buyer verification and city approval. The second unit offers approximately 576 sq ft, providing an excellent option for rental income, guest quarters, or private living space for family members.
The expansive lot provides plenty of room to enjoy a true ranch-style lifestyle, complete with fruit trees and open space for gardening, animals, outdoor entertaining, or future improvements. According to the city, the property may allow up to three structures on the lot, creating the potential to add another ADU, subject to buyer verification. There may also be the possibility of a parcel split, offering additional value and long-term potential.
This property is ideal for buyers looking to escape the busy city and enjoy a peaceful country setting while still being conveniently located near everyday amenities. Nearby you’ll find Beaumont High School, a local elementary school, and a nearby hospital for added convenience. The property also offers quick access to both the 60 and 10 freeways, making commuting easy. For outdoor lovers, Oak Glen is just a short drive away, offering hiking, apple orchards, seasonal festivals, and beautiful mountain scenery.
If you’ve been searching for a place where family can live together, enjoy open land, and experience the quiet charm of country life without being far from the city, 11285 Cherry Ave offers a unique opportunity to make that lifestyle a reality.
Property Details
Price:
$720,000
MLS #:
PW26045695
Status:
Active
Beds:
0
Baths:
0
Type:
Single Family
Subtype:
Single Family Residence
Neighborhood:
263banningbeaumontcherryvalley
Listed Date:
Mar 10, 2026
Total Sq Ft:
2,215
Lot Size:
49,658 sqft / 1.14 acres (approx)
Year Built:
1952
Schools
Interior
Appliances
DW, GR, GWH
Cooling
CA
Heating
CF
Laundry Features
IR
Levels
A
Exterior
Architectural Style
RAN
Common Walls
NCW
Community Features
RUR, MTN
Garage Spaces
1
Green Energy Efficient
INS, APL, HVC, THR
Parking Spots
1
Parking Total
1
View
MT
Financial
Maintenance Fee
$1,200
Get Out There, A Simply Outgoing Approach to Life. James Outland Jr. is one of those rare people who simply has an outgoing approach to life. No matter the activity… from dune buggy riding to skydiving to motorcycling to riding the local Pismo Beach waves… James Outland Jr. approaches life with a “just get out there and do it” kind of attitude. A zest for Life. James’ zest for life is obviously apparent in his many exciting hobbies. In his spare time, he loves riding dune buggies or hi…
More About JamesMortgage Calculator
Map
Current real estate data for Single Family in Cherry Valley as of Apr 06, 2026
45
Single Family Listed
100
Avg DOM
287
Avg $ / SqFt
$705,809
Avg List Price
Community
- Address11285 Cherry AV Cherry Valley CA
- SubdivisionOther (OTHR)
- CityCherry Valley
- CountyRiverside
- Zip Code92223
Similar Listings Nearby
Property Summary
- Located in the Other (OTHR) subdivision, 11285 Cherry AV Cherry Valley CA is a Single Family for sale in Cherry Valley, CA, 92223. It is listed for $720,000 and features 0 beds, 0 baths, and has approximately 0 square feet of living space, and was originally constructed in 1952. The average price per square foot for Single Family listings in Cherry Valley is $287. The average listing price for Single Family in Cherry Valley is $705,809. To schedule a showing of MLS#pw26045695 at 11285 Cherry AV in Cherry Valley, CA, contact your James Outland agent at 8057482262.
Courtesy of Realty Masters & Associates. Disclaimer: All data relating to real estate for sale on this page comes from the Broker Reciprocity (BR) of the California Regional Multiple Listing Service. Detailed information about real estate listings held by brokerage firms other than James Outland include the name of the listing broker. Neither the listing company nor James Outland shall be responsible for any typographical errors, misinformation, misprints and shall be held totally harmless. The Broker providing this data believes it to be correct, but advises interested parties to confirm any item before relying on it in a purchase decision. Copyright 2026. California Regional Multiple Listing Service. All rights reserved. 11285 Cherry AV
Cherry Valley, CA

















































































































