$439,500
67687 Duchess RD #101
Cathedral City, CA, 92234
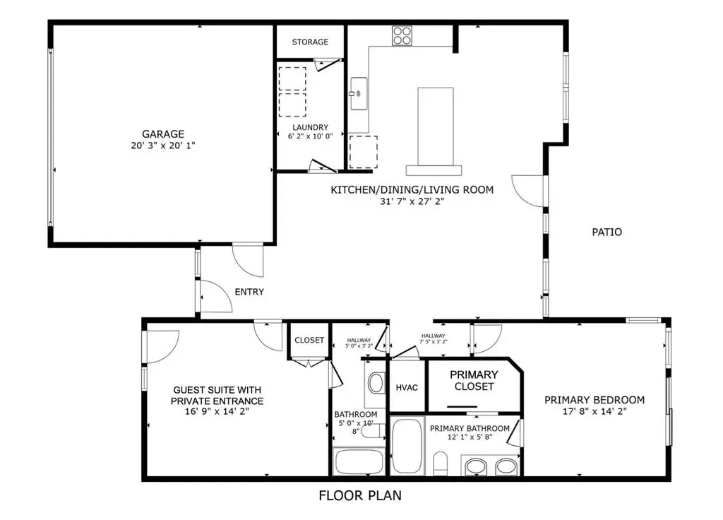
This Beautifully maintained single-story end-unit condominium with 2 Bedrooms and 2 Bathrooms features direct access to its own private 2-car attached Garage. The warm, sophisticated interior features an open-concept Great Room, Dining Area and Kitchen with no partition walls. The Custom Window Coverings with Up-Down Shades provide abundant natural light while maintaining privacy. The Spacious Kitchen, with Granite Countertops and a large Breakfast Bar are adjacent to the Dining Area, which is great for entertaining. The South-facing Patio with mountain glimpses and a scenic desert walkway leading to the community’s large pool and spa are a plus. The Primary Suite with Desert Landscaping views similar to those from the Patio, includes an ensuite bathroom with access to the spacious Primary Bedroom Closet. The Second Bedroom Suite features direct access to the Guest/Second Bath and its own private entrance which is ideal for guests. The large Laundry Room with side-by-side Washer and Dryer includes ample storage space as well. And again, the attached 2-Car Garage is ideal. This lovely Simplex Condominium Residence, with no one living above, is located adjacent to the Cimarron Country Club/Golf Course that features two championship courses, a Pro Shop, Dining with Breakfast and Lunch options plus its ‘Happy Hour’ from 3pm to 6pm daily. Lantana at Cimarron is located at the end of 30th Avenue, west of Landau Road in Cathedral City, CA. It shares the same gated entry as the Worldmark Time-Share Residences.
Property Details
Price:
$439,500
MLS #:
219139120PS
Status:
Active
Beds:
2
Baths:
2
Type:
Condo
Subtype:
Condominium
Subdivision:
Lantana at Cimarron
Neighborhood:
335cathedralcitynorth
Listed Date:
Nov 21, 2025
Finished Sq Ft:
1,478
Lot Size:
1,500 sqft / 0.03 acres (approx)
Year Built:
2008
Schools
Interior
Appliances
DW, GD, MW, RF, GO, GS
Bathrooms
2 Full Bathrooms
Cooling
CA
Flooring
TILE, CARP
Heating
FA, GAS, ZN
Interior Features
OFP
Laundry Features
IR
Levels
A
Exterior
Architectural Style
MED
Attached Garage YN
1
Construction Materials
STC
Fencing
NO
Garage Spaces
2
Parking Spots
4
Parking Total
4
Patio And Porch Features
CON
Roof
TLE
Security Features
GC
Spa Features
IG, COM
View
MT, PE
Financial
HOA Fee
$498
HOA Fee Frequency
MO
Get Out There, A Simply Outgoing Approach to Life. James Outland Jr. is one of those rare people who simply has an outgoing approach to life. No matter the activity… from dune buggy riding to skydiving to motorcycling to riding the local Pismo Beach waves… James Outland Jr. approaches life with a “just get out there and do it” kind of attitude. A zest for Life. James’ zest for life is obviously apparent in his many exciting hobbies. In his spare time, he loves riding dune buggies or hi…
More About JamesMortgage Calculator
Map
Current real estate data for Condo in Cathedral City as of Apr 07, 2026
88
Condo Listed
94
Avg DOM
267
Avg $ / SqFt
$327,965
Avg List Price
Community
- Address67687 Duchess RD #101 Cathedral City CA
- SubdivisionLantana at Cimarron
- CityCathedral City
- CountyRiverside
- Zip Code92234
Similar Listings Nearby
Property Summary
- Located in the Lantana at Cimarron subdivision, 67687 Duchess RD #101 Cathedral City CA is a Condo for sale in Cathedral City, CA, 92234. It is listed for $439,500 and features 2 beds, 2 baths, and has approximately 1,478 square feet of living space, and was originally constructed in 2008. The current price per square foot is $297. The average price per square foot for Condo listings in Cathedral City is $267. The average listing price for Condo in Cathedral City is $327,965. To schedule a showing of MLS#219139120ps at 67687 Duchess RD #101 in Cathedral City, CA, contact your James Outland agent at 8057482262.
Courtesy of Charles Estates. Disclaimer: All data relating to real estate for sale on this page comes from the Broker Reciprocity (BR) of the California Regional Multiple Listing Service. Detailed information about real estate listings held by brokerage firms other than James Outland include the name of the listing broker. Neither the listing company nor James Outland shall be responsible for any typographical errors, misinformation, misprints and shall be held totally harmless. The Broker providing this data believes it to be correct, but advises interested parties to confirm any item before relying on it in a purchase decision. Copyright 2026. California Regional Multiple Listing Service. All rights reserved. 67687 Duchess RD #101
Cathedral City, CA











































































