$625,000
67740 S Trancas DR
Cathedral City, CA, 92234
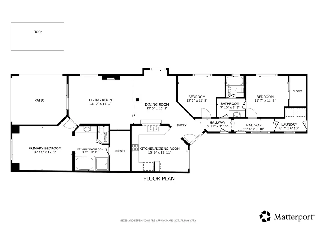
3-bedroom, 2-bath home located on the golf course with a private spool! Situated in a gated community with great amenities, this home features a gated courtyard with a charming outdoor dining area for two, along with an enclosed gated rear patio. Inside, the open floor plan is filled with natural light and includes a welcoming living area with a fireplace and newer blinds throughout. The modern kitchen offers newer appliances, crisp white cabinetry, and a faux tile backsplash, along with a dining nook, while a separate dining area provides additional space for gatherings. Spacious bedrooms and updated bathrooms offer comfort throughout, including a primary suite with an ensuite bathroom featuring a soaking tub and separate walk-in shower. A glass slider opens to the backyard overlooking the golf course, where you’ll find the spool along with both covered and uncovered dining areas–perfect for relaxing or entertaining while enjoying the view. Recent upgrades include newer central AC, a newer pool filter, a newer spa pump, and a newer 25-year solar system for added energy efficiency. Additional conveniences include a pet door providing easy access to the outdoors. This home perfectly combines comfort, thoughtful upgrades, and golf course living in a desirable gated community.
Property Details
Price:
$625,000
MLS #:
219144893DA
Status:
Active
Beds:
3
Baths:
2
Type:
Condo
Subtype:
Condominium
Subdivision:
Desert Princess
Neighborhood:
335cathedralcitynorth
Listed Date:
Mar 17, 2026
Finished Sq Ft:
1,640
Lot Size:
2,178 sqft / 0.05 acres (approx)
Year Built:
1993
Schools
Interior
Bathrooms
2 Full Bathrooms
Cooling
CA, ELC
Flooring
TILE
Heating
FA, CF, FIR
Interior Features
BAR, DBAR, RECL, OFP, TREY
Exterior
Attached Garage YN
1
Garage Spaces
2
Parking Spots
2
Parking Total
2
Security Features
EXL, _24HR, AG, CRD, PRKG, GC, MGR
Spa Features
HT, IG
View
DE, GC, HI, MT, PA, PK, WA, PO
Financial
HOA Fee
$995
HOA Fee Frequency
MO
Lease Land Amount
$1,872
Get Out There, A Simply Outgoing Approach to Life. James Outland Jr. is one of those rare people who simply has an outgoing approach to life. No matter the activity… from dune buggy riding to skydiving to motorcycling to riding the local Pismo Beach waves… James Outland Jr. approaches life with a “just get out there and do it” kind of attitude. A zest for Life. James’ zest for life is obviously apparent in his many exciting hobbies. In his spare time, he loves riding dune buggies or hi…
More About JamesMortgage Calculator
Map
Current real estate data for Condo in Cathedral City as of Apr 08, 2026
92
Condo Listed
92
Avg DOM
268
Avg $ / SqFt
$328,971
Avg List Price
Community
- Address67740 S Trancas DR Cathedral City CA
- SubdivisionDesert Princess
- CityCathedral City
- CountyRiverside
- Zip Code92234
Similar Listings Nearby
Property Summary
- Located in the Desert Princess subdivision, 67740 S Trancas DR Cathedral City CA is a Condo for sale in Cathedral City, CA, 92234. It is listed for $625,000 and features 3 beds, 2 baths, and has approximately 1,640 square feet of living space, and was originally constructed in 1993. The current price per square foot is $381. The average price per square foot for Condo listings in Cathedral City is $268. The average listing price for Condo in Cathedral City is $328,971. To schedule a showing of MLS#219144893da at 67740 S Trancas DR in Cathedral City, CA, contact your James Outland agent at 8057482262.
Courtesy of Redfin Corporation. Disclaimer: All data relating to real estate for sale on this page comes from the Broker Reciprocity (BR) of the California Regional Multiple Listing Service. Detailed information about real estate listings held by brokerage firms other than James Outland include the name of the listing broker. Neither the listing company nor James Outland shall be responsible for any typographical errors, misinformation, misprints and shall be held totally harmless. The Broker providing this data believes it to be correct, but advises interested parties to confirm any item before relying on it in a purchase decision. Copyright 2026. California Regional Multiple Listing Service. All rights reserved. 67740 S Trancas DR
Cathedral City, CA













































