$1,799,000
3642 Lorena AV
Castro Valley, CA, 94546
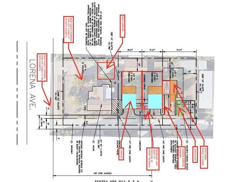
Exceptional investment & development opportunity on nearly 0.5-acre flat lot! Potential for a 4-lot subdivision Survey Completed, preliminary plans available to retain the existing home and build 3 additional detached townhomes (Like an SFH). Charming split-level home offering 4 beds & 2 baths. Main level features living/dining, kitchen & breakfast nook overlooking the spacious backyard. Upstairs has 3 bedrooms & 1 bath. Lower level includes separate entrance, den, full bath, laundry, storage & flexible space for office/wine cellar/4th bedroom great for multi-gen living or rental income. Endless possibilities: add an ADU, build a pool, park RV/boat, expand or develop. Backyard includes mature fruit trees avocado, grapefruit, Santa Rosa plum, Meyer lemon, orange & bay leaf. Prime location in Castro Valley close to downtown, shops, restaurants & BART. Rare opportunity with strong upside!
Property Details
Price:
$1,799,000
MLS #:
ML82036418
Status:
Pending
Beds:
3
Baths:
2
Type:
Single Family
Subtype:
Single Family Residence
Neighborhood:
699notdefined
Listed Date:
Mar 15, 2026
Finished Sq Ft:
2,350
Lot Size:
20,473 sqft / 0.47 acres (approx)
Year Built:
1938
Schools
School District:
Other
Elementary School:
Castro Valley
Middle School:
Other
High School:
Other
Interior
Appliances
DW
Bathrooms
2 Full Bathrooms
Flooring
LAM, CONC, CARP
Heating
FA
Exterior
Common Walls
NCW
Garage Spaces
2
Parking Spots
2
Parking Total
2
Roof
SHN
Spa Features
NO
Financial
Get Out There, A Simply Outgoing Approach to Life. James Outland Jr. is one of those rare people who simply has an outgoing approach to life. No matter the activity… from dune buggy riding to skydiving to motorcycling to riding the local Pismo Beach waves… James Outland Jr. approaches life with a “just get out there and do it” kind of attitude. A zest for Life. James’ zest for life is obviously apparent in his many exciting hobbies. In his spare time, he loves riding dune buggies or hi…
More About JamesMortgage Calculator
Map
Current real estate data for Single Family in Castro Valley as of Apr 06, 2026
9
Single Family Listed
47
Avg DOM
431
Avg $ / SqFt
$823,022
Avg List Price
Community
- Address3642 Lorena AV Castro Valley CA
- CityCastro Valley
- CountyAlameda
- Zip Code94546
Similar Listings Nearby
Property Summary
- 3642 Lorena AV Castro Valley CA is a Single Family for sale in Castro Valley, CA, 94546. It is listed for $1,799,000 and features 3 beds, 2 baths, and has approximately 2,350 square feet of living space, and was originally constructed in 1938. The current price per square foot is $766. The average price per square foot for Single Family listings in Castro Valley is $431. The average listing price for Single Family in Castro Valley is $823,022. To schedule a showing of MLS#ml82036418 at 3642 Lorena AV in Castro Valley, CA, contact your James Outland agent at 8057482262.
Courtesy of Alliance Bay Realty. Disclaimer: All data relating to real estate for sale on this page comes from the Broker Reciprocity (BR) of the California Regional Multiple Listing Service. Detailed information about real estate listings held by brokerage firms other than James Outland include the name of the listing broker. Neither the listing company nor James Outland shall be responsible for any typographical errors, misinformation, misprints and shall be held totally harmless. The Broker providing this data believes it to be correct, but advises interested parties to confirm any item before relying on it in a purchase decision. Copyright 2026. California Regional Multiple Listing Service. All rights reserved. 3642 Lorena AV
Castro Valley, CA





