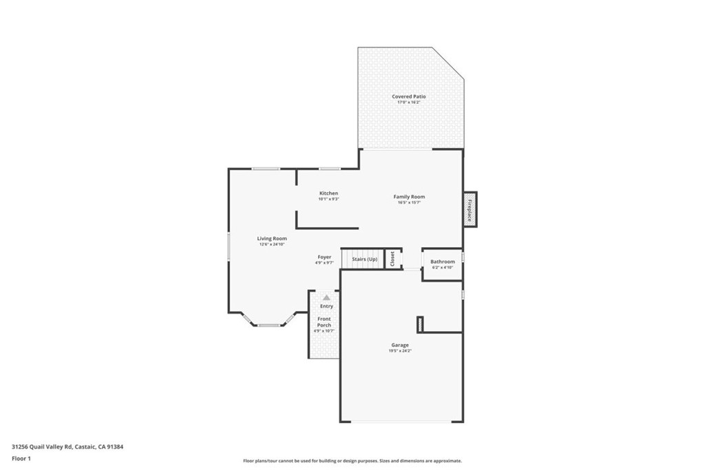
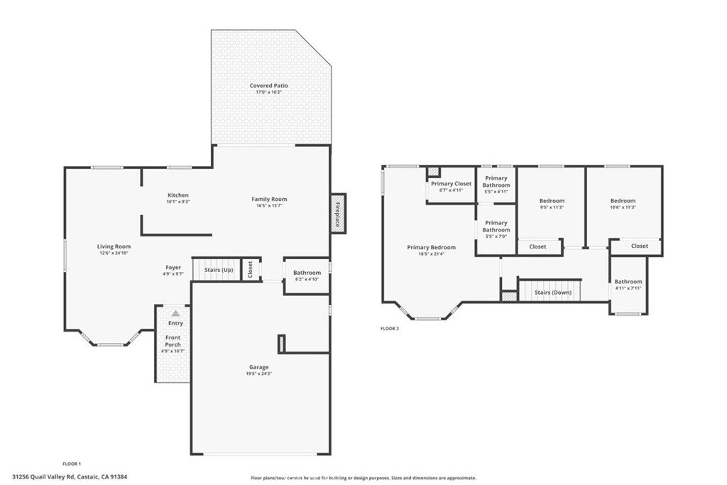
Enter into a bright and inviting interior with fresh white paint, recessed lighting, and new wood-tone flooring throughout. The home boasts a spacious layout including a formal foyer, living room with a charming brick fireplace, and a separate family room, ideal for both everyday living and entertaining.
The updated kitchen showcases stainless steel appliances, granite countertops, and ample cabinetry, with matching granite finishes in all bathrooms. The primary suite offers a true retreat with a walk-in closet, dual sinks, and a luxurious separate tub and shower.
Floor-to-ceiling sliding glass doors open up to a spectacular resort-style backyard, designed and built by the original owners. This private outdoor oasis includes a built-in BBQ, covered patio, fire pit, and outdoor furniture included, making it perfect for relaxing or hosting guests year-round. The sparkling pool completes the space, creating the ultimate California lifestyle experience.
Property Details
Schools
Interior
Exterior
Financial
Get Out There, A Simply Outgoing Approach to Life. James Outland Jr. is one of those rare people who simply has an outgoing approach to life. No matter the activity… from dune buggy riding to skydiving to motorcycling to riding the local Pismo Beach waves… James Outland Jr. approaches life with a “just get out there and do it” kind of attitude. A zest for Life. James’ zest for life is obviously apparent in his many exciting hobbies. In his spare time, he loves riding dune buggies or hi…
More About JamesMortgage Calculator
Map
Community
- Address31256 Quail Valley RD Castaic CA
- CityCastaic
- CountyLos Angeles
- Zip Code91384
Similar Listings Nearby
Property Summary
- 31256 Quail Valley RD Castaic CA is a Single Family for sale in Castaic, CA, 91384. It is listed for $5,250 and features 3 beds, 3 baths, and has approximately 1,562 square feet of living space, and was originally constructed in 1988. The current price per square foot is $3. The average price per square foot for Single Family listings in Castaic is $367. The average listing price for Single Family in Castaic is $724,164. To schedule a showing of MLS#sr26012821 at 31256 Quail Valley RD in Castaic, CA, contact your James Outland agent at 8057482262.
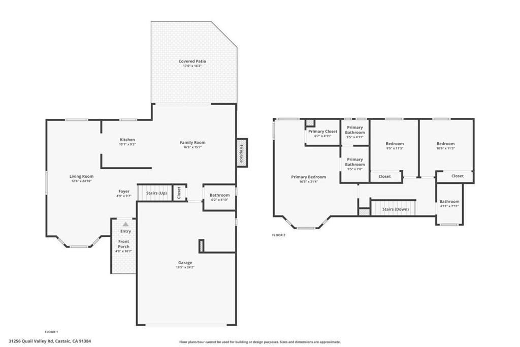
Courtesy of JohnHart Real Estate. Disclaimer: All data relating to real estate for sale on this page comes from the Broker Reciprocity (BR) of the California Regional Multiple Listing Service. Detailed information about real estate listings held by brokerage firms other than James Outland include the name of the listing broker. Neither the listing company nor James Outland shall be responsible for any typographical errors, misinformation, misprints and shall be held totally harmless. The Broker providing this data believes it to be correct, but advises interested parties to confirm any item before relying on it in a purchase decision. Copyright 2026. California Regional Multiple Listing Service. All rights reserved. Enter into a bright and inviting interior with fresh white paint, recessed lighting, and new wood-tone flooring throughout. The home boasts a spacious layout including a formal foyer, living room with a charming brick fireplace, and a separate family room, ideal for both everyday living and entertaining.
The updated kitchen showcases stainless steel appliances, granite countertops, and ample cabinetry, with matching granite finishes in all bathrooms. The primary suite offers a true retreat with a walk-in closet, dual sinks, and a luxurious separate tub and shower.
Floor-to-ceiling sliding glass doors open up to a spectacular resort-style backyard, designed and built by the original owners. This private outdoor oasis includes a built-in BBQ, covered patio, fire pit, and outdoor furniture included, making it perfect for relaxing or hosting guests year-round. The sparkling pool completes the space, creating the ultimate California lifestyle experience.
Property Details
Schools
Interior
Exterior
Financial
Get Out There, A Simply Outgoing Approach to Life. James Outland Jr. is one of those rare people who simply has an outgoing approach to life. No matter the activity… from dune buggy riding to skydiving to motorcycling to riding the local Pismo Beach waves… James Outland Jr. approaches life with a “just get out there and do it” kind of attitude. A zest for Life. James’ zest for life is obviously apparent in his many exciting hobbies. In his spare time, he loves riding dune buggies or hi…
More About JamesMortgage Calculator
Map
Community
- Address31256 Quail Valley RD Castaic CA
- CityCastaic
- CountyLos Angeles
- Zip Code91384
Similar Listings Nearby
Property Summary
- 31256 Quail Valley RD Castaic CA is a Single Family for sale in Castaic, CA, 91384. It is listed for $875,000 and features 3 beds, 3 baths, and has approximately 1,562 square feet of living space, and was originally constructed in 1988. The current price per square foot is $560. The average price per square foot for Single Family listings in Castaic is $367. The average listing price for Single Family in Castaic is $724,164. To schedule a showing of MLS#sr26068106 at 31256 Quail Valley RD in Castaic, CA, contact your James Outland agent at 8057482262.































































