$975,000
24501 Via Mar Monte #77
Carmel, CA, 93923
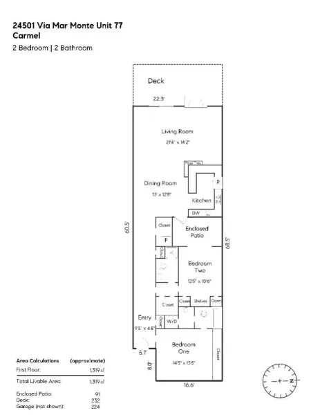
Tucked in the peaceful hills of Carmel, 24501 Via Mar Monte Unit 77 offers the perfect blend of coastal charm and modern comfort. This wonderful condo is designed for effortless living, whether you’re seeking a serene retreat or a full-time residence. Step inside to find a bright, airy living space with large windows that bathe the interior in natural light. The open-concept layout seamlessly connects the kitchen, dining, and living areas, creating a warm and welcoming flow. Cozy up by the fireplace on cooler evenings, or step out onto your private balcony to take in the picturesque surroundings, including a delightful peek at Pt. Lobos and views of the Santa Lucia mountains. This thoughtfully designed 2-bedroom, 2-bathroom home is tailored for both comfort and convenience. The primary suite features a spacious layout and an ensuite bathroom. The second bedroom has an ensuite bathroom, making it ideal for guests. Located in a highly desirable part of Carmel, this property enjoys a mild microclimate and recreational amenities, including a pool and tennis courts. Its prime location offers quick access to the shops and restaurants of Carmel-by-the-Sea, nearby Monterey and Highway 1 for exploring Big Sur to the south.
Property Details
Price:
$975,000
MLS #:
ML82032092
Status:
Active
Beds:
2
Baths:
2
Type:
Condo
Subtype:
Condominium
Neighborhood:
699notdefined
Listed Date:
Jan 23, 2026
Finished Sq Ft:
1,370
Year Built:
1977
Schools
School District:
Carmel Unified
Elementary School:
Carmel River
Middle School:
Carmel
High School:
Carmel
Interior
Appliances
DW, GD, MW, RF, GS, HOD, VEF
Bathrooms
2 Full Bathrooms
Cooling
NO
Flooring
TILE, LAM, CARP
Heating
CF
Exterior
Architectural Style
RAN
Direction Faces
SW
Garage Spaces
1
Parking Spots
3
Parking Total
3
Patio And Porch Features
DK
Roof
TARGRV
Spa Features
COM
View
OC, PK, TW
Financial
HOA Fee
$1,050
HOA Fee Frequency
MO
Get Out There, A Simply Outgoing Approach to Life. James Outland Jr. is one of those rare people who simply has an outgoing approach to life. No matter the activity… from dune buggy riding to skydiving to motorcycling to riding the local Pismo Beach waves… James Outland Jr. approaches life with a “just get out there and do it” kind of attitude. A zest for Life. James’ zest for life is obviously apparent in his many exciting hobbies. In his spare time, he loves riding dune buggies or hi…
More About JamesMortgage Calculator
Map
Community
- Address24501 Via Mar Monte #77 Carmel CA
- CityCarmel
- CountyMonterey
- Zip Code93923
Similar Listings Nearby
Property Summary
- 24501 Via Mar Monte #77 Carmel CA is a Condo for sale in Carmel, CA, 93923. It is listed for $975,000 and features 2 beds, 2 baths, and has approximately 1,370 square feet of living space, and was originally constructed in 1977. The current price per square foot is $712. The average price per square foot for Condo listings in Carmel is $818. The average listing price for Condo in Carmel is $1,057,895. To schedule a showing of MLS#ml82032092 at 24501 Via Mar Monte #77 in Carmel, CA, contact your James Outland agent at 8057482262.
Courtesy of Compass. Disclaimer: All data relating to real estate for sale on this page comes from the Broker Reciprocity (BR) of the California Regional Multiple Listing Service. Detailed information about real estate listings held by brokerage firms other than James Outland include the name of the listing broker. Neither the listing company nor James Outland shall be responsible for any typographical errors, misinformation, misprints and shall be held totally harmless. The Broker providing this data believes it to be correct, but advises interested parties to confirm any item before relying on it in a purchase decision. Copyright 2026. California Regional Multiple Listing Service. All rights reserved. 24501 Via Mar Monte #77
Carmel, CA










































