$329,000
10 Gitana AV #157
Camarillo, CA, 93012
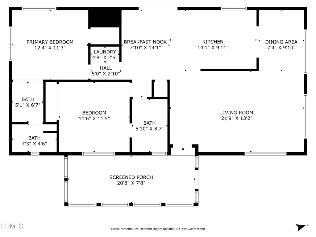
Welcome to Camarillo Springs and an incredible opportunity in the popular 55+ gated community, nestled against the Camarillo hills. This value-priced home offers approx. 1,256 sq. ft. with 2 bedrooms and 2 baths, featuring an open kitchen, dining area, and a spacious living room that flows to a large screened-in porch–perfect for morning coffee or evening breezes. Thoughtful touches include updated bathrooms, dual-pane windows and slider, a covered carport for two cars, and two storage sheds. Best of all, this is not leased land–you own both the land and the home. Enjoy resort-style amenities: pool, spa, clubhouse, exercise room, and bocce ball court. HOA includes basic cable and sewer. All of this just moments from Camarillo Springs Golf Course, with easy access to shopping and dining via the 101 freeway. A fantastic chance to make this friendly, well-kept community your next home.
Property Details
Price:
$329,000
MLS #:
V1-31976
Status:
Pending
Beds:
2
Baths:
2
Type:
Single Family
Subtype:
Manufactured On Land
Subdivision:
Camarillo Springs MHP – 3883
Neighborhood:
vc45missionoaks
Listed Date:
Dec 17, 2025
Finished Sq Ft:
1,256
Lot Size:
3,484 sqft / 0.08 acres (approx)
Year Built:
1972
Schools
Interior
Appliances
GR, EO
Bathrooms
2 Full Bathrooms
Cooling
NO
Flooring
SEE
Exterior
Community
55+
Community Features
SL
Parking Spots
2
Financial
HOA Fee
$392
HOA Frequency
MO
Get Out There, A Simply Outgoing Approach to Life. James Outland Jr. is one of those rare people who simply has an outgoing approach to life. No matter the activity… from dune buggy riding to skydiving to motorcycling to riding the local Pismo Beach waves… James Outland Jr. approaches life with a “just get out there and do it” kind of attitude. A zest for Life. James’ zest for life is obviously apparent in his many exciting hobbies. In his spare time, he loves riding dune buggies or hi…
More About JamesMortgage Calculator
Map
Current real estate data for Single Family in Camarillo as of Dec 21, 2025
60
Single Family Listed
136
Avg DOM
440
Avg $ / SqFt
$936,474
Avg List Price
Community
- Address10 Gitana AV #157 Camarillo CA
- SubdivisionCamarillo Springs MHP – 3883
- CityCamarillo
- CountyVentura
- Zip Code93012
Subdivisions in Camarillo
- Adolfo Glen 2 4981
- Avocado Acres 1 & 2 0421
- Camarillo Central: Other – 41
- Camarillo Heights: Other – 0042
- Camarillo Springs MHP – 3883
- Fairfield 1 – 4101
- Fairfield 2 – 4271
- Garnidale Estates 2 – 410301
- Hidden Meadows Estates 1 – 273201
- La Entrada – 4479
- Lamplighter MHP – 1004922
- Las Posas Estates – 5249
- Leisure Village 1 – 226501
- Leisure Village 10 – 248707
- Leisure Village 11 – 248708
- Leisure Village 13 – 248710
- Leisure Village 2 – 226502
- Leisure Village 4 – 248701
- Leisure Village 6 – 248703
- Leisure Village 7 – 248704
- Leisure Village 8 – 248705
- Mission Delmonte 1 – 238105
- Mission Oaks: Other
- Mission Verde – 3622
- Monte Vienda 1 – 1632
- Other – 0011
- Rancho Tomas Citihomes – 3307
- Spanish Hills 1 422701
- Sterling Hills 1 – 494802
- Terra Bella Estates – 2910
- Terra Linda – 507804
- Tesoro Walk – 5455
- Village at the Park – 5486
Similar Listings Nearby
Property Summary
- Located in the Camarillo Springs MHP – 3883 subdivision, 10 Gitana AV #157 Camarillo CA is a Single Family for sale in Camarillo, CA, 93012. It is listed for $329,000 and features 2 beds, 2 baths, and has approximately 1,256 square feet of living space, and was originally constructed in 1972. The current price per square foot is $262. The average price per square foot for Single Family listings in Camarillo is $440. The average listing price for Single Family in Camarillo is $936,474. To schedule a showing of MLS#v1-31976 at 10 Gitana AV #157 in Camarillo, CA, contact your James Outland agent at 8057482262.
Courtesy of RE/MAX Gold Coast REALTORS. Disclaimer: All data relating to real estate for sale on this page comes from the Broker Reciprocity (BR) of the California Regional Multiple Listing Service. Detailed information about real estate listings held by brokerage firms other than James Outland include the name of the listing broker. Neither the listing company nor James Outland shall be responsible for any typographical errors, misinformation, misprints and shall be held totally harmless. The Broker providing this data believes it to be correct, but advises interested parties to confirm any item before relying on it in a purchase decision. Copyright 2025. California Regional Multiple Listing Service. All rights reserved. 10 Gitana AV #157
Camarillo, CA




















































