$999,000
138 Locust
Brea, CA, 92821
(Asking price is for the house only. Construction will be done with seperate agreement)
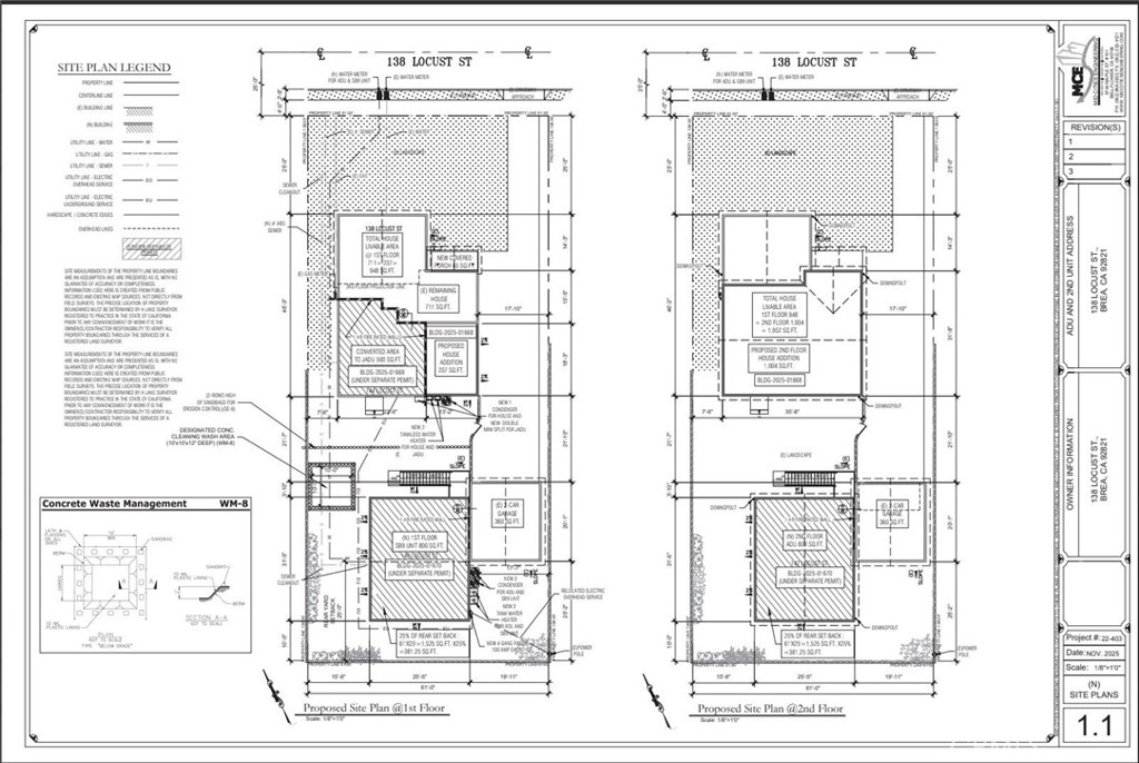
Exceptional opportunity to acquire a nearly shovel ready multi unit compound in the heart of Brea with plans already submitted to the city. This property is being offered with a unique build to suit structure, where the seller is also the builder, allowing buyers to collaborate on construction and customize finishes while avoiding the complexities of managing their own build.
The proposed project includes four total units consisting of a main residence, a Junior ADU, a detached ADU, and an SB9 unit. The front home is designed to be converted into a two story structure, significantly increasing total living area and maximizing the full potential of the lot. Once completed, the property will function as a true compound with flexible living options and strong long term value.
Sale of the property is contingent upon construction of the project by the seller, providing buyers a streamlined path to ownership with a trusted build process already in place. This setup is ideal for owner users seeking multi generational living, investors looking for multiple income streams, or buyers wanting to secure a rare Orange County compound without starting from scratch.
Prime Brea location close to top rated schools, shopping, dining, and convenient freeway access. Opportunities with submitted plans, multiple units, and a builder led execution are extremely rare.
Exceptional opportunity to acquire a nearly shovel ready multi unit compound in the heart of Brea with plans already submitted to the city. This property is being offered with a unique build to suit structure, where the seller is also the builder, allowing buyers to collaborate on construction and customize finishes while avoiding the complexities of managing their own build.
The proposed project includes four total units consisting of a main residence, a Junior ADU, a detached ADU, and an SB9 unit. The front home is designed to be converted into a two story structure, significantly increasing total living area and maximizing the full potential of the lot. Once completed, the property will function as a true compound with flexible living options and strong long term value.
Sale of the property is contingent upon construction of the project by the seller, providing buyers a streamlined path to ownership with a trusted build process already in place. This setup is ideal for owner users seeking multi generational living, investors looking for multiple income streams, or buyers wanting to secure a rare Orange County compound without starting from scratch.
Prime Brea location close to top rated schools, shopping, dining, and convenient freeway access. Opportunities with submitted plans, multiple units, and a builder led execution are extremely rare.
Property Details
Price:
$999,000
MLS #:
RS26018550
Status:
Active
Beds:
3
Baths:
1
Type:
Single Family
Subtype:
Single Family Residence
Neighborhood:
86brea
Listed Date:
Feb 1, 2026
Finished Sq Ft:
1,211
Lot Size:
8,418 sqft / 0.19 acres (approx)
Year Built:
1952
Schools
School District:
Brea-Olinda Unified
High School:
Brea Olinda
Interior
Appliances
DW, FZ, GER, CO
Bathrooms
1 Full Bathroom
Cooling
CA
Heating
CF
Laundry Features
DINC, WINC
Exterior
Community Features
CRB, PARK, BIKI
Parking Spots
2
Financial
Get Out There, A Simply Outgoing Approach to Life. James Outland Jr. is one of those rare people who simply has an outgoing approach to life. No matter the activity… from dune buggy riding to skydiving to motorcycling to riding the local Pismo Beach waves… James Outland Jr. approaches life with a “just get out there and do it” kind of attitude. A zest for Life. James’ zest for life is obviously apparent in his many exciting hobbies. In his spare time, he loves riding dune buggies or hi…
More About JamesMortgage Calculator
Map
Current real estate data for Single Family in Brea as of Feb 14, 2026
59
Single Family Listed
40
Avg DOM
379
Avg $ / SqFt
$759,232
Avg List Price
Community
- Address138 Locust Brea CA
- CityBrea
- CountyOrange
- Zip Code92821
Similar Listings Nearby
Property Summary
- 138 Locust Brea CA is a Single Family for sale in Brea, CA, 92821. It is listed for $999,000 and features 3 beds, 1 baths, and has approximately 1,211 square feet of living space, and was originally constructed in 1952. The current price per square foot is $825. The average price per square foot for Single Family listings in Brea is $379. The average listing price for Single Family in Brea is $759,232. To schedule a showing of MLS#rs26018550 at 138 Locust in Brea, CA, contact your James Outland agent at 8057482262.
Courtesy of Investment Experts Inc. Disclaimer: All data relating to real estate for sale on this page comes from the Broker Reciprocity (BR) of the California Regional Multiple Listing Service. Detailed information about real estate listings held by brokerage firms other than James Outland include the name of the listing broker. Neither the listing company nor James Outland shall be responsible for any typographical errors, misinformation, misprints and shall be held totally harmless. The Broker providing this data believes it to be correct, but advises interested parties to confirm any item before relying on it in a purchase decision. Copyright 2026. California Regional Multiple Listing Service. All rights reserved. 138 Locust
Brea, CA





