$749,900
Lynn RD Lot 49
Big Bear Lake, CA, 92315
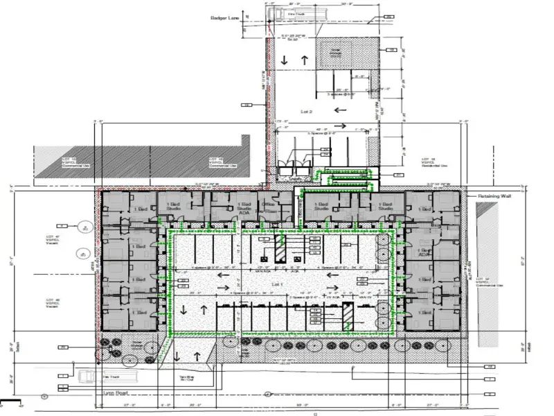
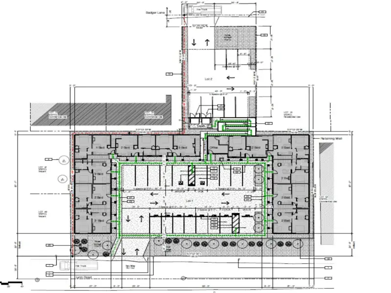
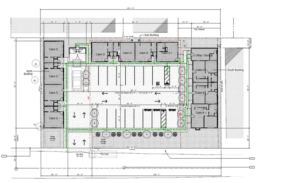
Exceptional development opportunity in Big Bear Lake within the highly desirable Village Specific Plan. This 19,800 sq.ft. commercial land parcel is zoned Commercial Lodging and offers rare flexibility for investors and developers seeking hospitality, residential, or retail potential in the heart of Big Bear Village. The property can be purchased on its own or combined with the adjacent lot at 532 Badger Ln (offered at $549,900) to unlock larger-scale development options. When assembled, preliminary plans are already in place for a 24-unit (16 one bedrooms/8 studios) hotel, as well as alternative plans for a 6-unit condo project, providing multiple viable paths depending on market strategy. The subject parcel alone can accommodate an 11 rental unit hotel + office/storage, with preliminary plans completed, or a 5-unit condo development, offering flexibility for phased or smaller-scale projects. Once built, upper-level and second-story units are anticipated to enjoy lake views, further enhancing long-term value and guest appeal. A perc test was completed in 2023, adding further value and reducing pre-development uncertainty. The location is a major highlight, just steps from the lake and a short walk to Pine Knot Ave, restaurants, shops, and entertainment, making it ideal for lodging, residential, or visitor-serving uses. In addition to hotel and condo development, the Village Specific Plan allows for a variety of other potential uses including residential, retail, restaurants, and related commercial uses, subject to approval. Buyer to conduct all due diligence with the planning commission and applicable agencies regarding permitted uses and development requirements.
Property Details
Price:
$749,900
MLS #:
IG26032209
Status:
Active
Beds:
0
Baths:
0
Type:
Land
Neighborhood:
289bigbeararea
Listed Date:
Feb 13, 2026
Lot Size:
19,800 sqft / 0.45 acres (approx)
Schools
Interior
Exterior
Community Features
RUR, SL, VLY, BLM, HRS, MTN, PSV, LAKE, FISH, HIKI, BIKI
Fencing
NO
View
LA, MT, VA
Financial
Tax Year
2025
Taxes
$7,146
Get Out There, A Simply Outgoing Approach to Life. James Outland Jr. is one of those rare people who simply has an outgoing approach to life. No matter the activity… from dune buggy riding to skydiving to motorcycling to riding the local Pismo Beach waves… James Outland Jr. approaches life with a “just get out there and do it” kind of attitude. A zest for Life. James’ zest for life is obviously apparent in his many exciting hobbies. In his spare time, he loves riding dune buggies or hi…
More About JamesMortgage Calculator
Map
Current real estate data for Land in Big Bear Lake as of Apr 05, 2026
48
Land Listed
158
Avg DOM
$339,706
Avg List Price
Community
- AddressLynn RD Lot 49 Big Bear Lake CA
- CityBig Bear Lake
- CountySan Bernardino
- Zip Code92315
Similar Listings Nearby
Property Summary
- Lynn RD Lot 49 Big Bear Lake CA is a Land for sale in Big Bear Lake, CA, 92315. It is listed for $749,900 and features 0 acres. To schedule a showing of MLS#ig26032209 at Lynn RD Lot 49 in Big Bear Lake, CA, contact your James Outland agent at 8057482262.
Courtesy of Jason Saphire Broker. Disclaimer: All data relating to real estate for sale on this page comes from the Broker Reciprocity (BR) of the California Regional Multiple Listing Service. Detailed information about real estate listings held by brokerage firms other than James Outland include the name of the listing broker. Neither the listing company nor James Outland shall be responsible for any typographical errors, misinformation, misprints and shall be held totally harmless. The Broker providing this data believes it to be correct, but advises interested parties to confirm any item before relying on it in a purchase decision. Copyright 2026. California Regional Multiple Listing Service. All rights reserved. Lynn RD Lot 49
Big Bear Lake, CA

















