$584,900
764 Crestwood
Big Bear Lake, CA, 92315
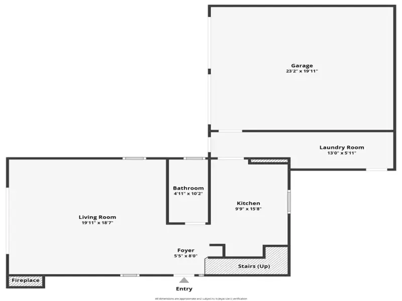
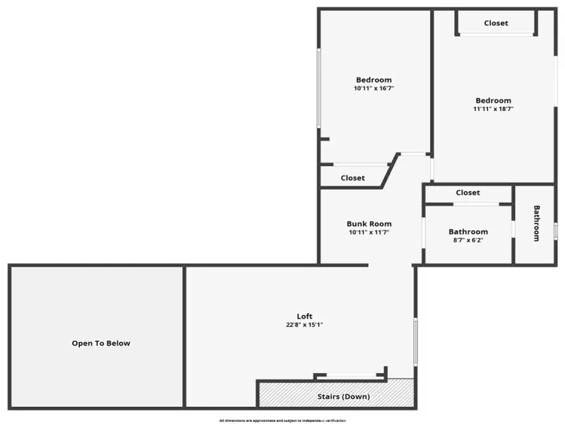
Walk to Snow Summit from this fantastic Modified A-Frame home ~ Inside you are greeted by a soaring tongue and groove ceiling in the living room with a native stone wood burning fireplace ~ Wood grain laminate flooring runs throughout the home except in the bedrooms where you have comfy carpet ~ The main level consists of the living room with a large dining area, the kitchen with granite counter tops and plenty of cabinets, storage areas, and a full bathroom ~ Through the kitchen you cross the indoor laundry area into the attached 2 car garage ~ Currently the garage is being used as a large game room with a built in bar ~ Upstairs you have a large loft with a closet that overlooks the living room and could be used as your 3rd bedroom ~ Through the loft there is a bonus sleeping nook with a bunkbed set up ~ This is where you find the second full bathroom with dual sinks ~ You have both bedrooms upstairs as well with the West facing bedroom having its own balcony deck that gives access down to the yard ~ Out back you have your above ground hot tub, ideal for unwinding after a long day on the slopes ~ The large paver driveway has room for 6 plus vehicles, boat or RV parking ~ Imagine not having to worry about parking for the slopes, being able to walk home for a lunch break and then a five minute walk back to the mountain for afternoon fun ~ Whether you are a winter sports family or summertime outdoor enthusiasts, this is a prime location with room for all your loved ones to spend quality time together under one roof!
Property Details
Price:
$584,900
MLS #:
IG26041479
Status:
Active
Beds:
3
Baths:
2
Type:
Single Family
Subtype:
Single Family Residence
Neighborhood:
289bigbeararea
Listed Date:
Feb 25, 2026
Finished Sq Ft:
1,649
Lot Size:
7,350 sqft / 0.17 acres (approx)
Year Built:
1969
Schools
School District:
Bear Valley Unified
Interior
Appliances
DW, MW, RF, TC, GO, GR, GS, GWH
Bathrooms
2 Full Bathrooms
Cooling
NO
Flooring
LAM, CARP
Heating
FA, GAS, CF, FIR
Interior Features
GRNC, LRDA, CC
Laundry Features
IR
Levels
U
Main Level Bathrooms
1
Exterior
Accessibility Features
NO
Architectural Style
CB
Attached Garage YN
1
Common Walls
NCW
Community Features
BLM, HRS, MTN, GOLF, LAKE, PARK, FISH, WATE, HIKI, BIKI, DGP
Direction Faces
E
Fencing
NO
Garage Spaces
2
Other Structures
SH
Parking Spots
8
Parking Total
8
Patio And Porch Features
DK, WOD
Roof
CMP
Security Features
COD
Spa Features
AG
View
TW, NE
Window Features
DPW
Financial
Get Out There, A Simply Outgoing Approach to Life. James Outland Jr. is one of those rare people who simply has an outgoing approach to life. No matter the activity… from dune buggy riding to skydiving to motorcycling to riding the local Pismo Beach waves… James Outland Jr. approaches life with a “just get out there and do it” kind of attitude. A zest for Life. James’ zest for life is obviously apparent in his many exciting hobbies. In his spare time, he loves riding dune buggies or hi…
More About JamesMortgage Calculator
Map
Current real estate data for Single Family in Big Bear Lake as of Apr 10, 2026
241
Single Family Listed
99
Avg DOM
425
Avg $ / SqFt
$777,355
Avg List Price
Community
- Address764 Crestwood Big Bear Lake CA
- CityBig Bear Lake
- CountySan Bernardino
- Zip Code92315
Similar Listings Nearby
Property Summary
- 764 Crestwood Big Bear Lake CA is a Single Family for sale in Big Bear Lake, CA, 92315. It is listed for $584,900 and features 3 beds, 2 baths, and has approximately 1,649 square feet of living space, and was originally constructed in 1969. The current price per square foot is $355. The average price per square foot for Single Family listings in Big Bear Lake is $425. The average listing price for Single Family in Big Bear Lake is $777,355. To schedule a showing of MLS#ig26041479 at 764 Crestwood in Big Bear Lake, CA, contact your James Outland agent at 8057482262.
Courtesy of KELLER WILLIAMS BIG BEAR. Disclaimer: All data relating to real estate for sale on this page comes from the Broker Reciprocity (BR) of the California Regional Multiple Listing Service. Detailed information about real estate listings held by brokerage firms other than James Outland include the name of the listing broker. Neither the listing company nor James Outland shall be responsible for any typographical errors, misinformation, misprints and shall be held totally harmless. The Broker providing this data believes it to be correct, but advises interested parties to confirm any item before relying on it in a purchase decision. Copyright 2026. California Regional Multiple Listing Service. All rights reserved. 764 Crestwood
Big Bear Lake, CA




















































