$5,850
136 S Palm DR #301
Beverly Hills, CA, 90212
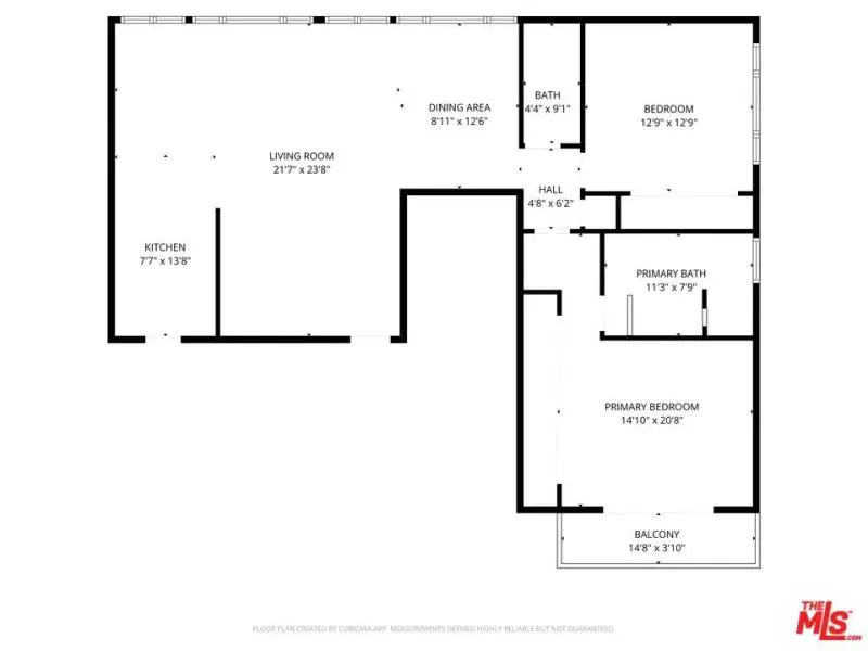
Perched on the 3rd floor in the heart of Beverly Hills, this fully remodeled 2-bedroom, 2-bath residence is bright, airy, and move-in ready. The expansive living and dining area is flooded with natural light from a wall of oversized windows, creating an ideal space for both relaxing and entertaining. The updated kitchen features sleek modern cabinetry, quartz-style countertops, and stainless steel appliances, with a clean, contemporary finish throughout. Both bathrooms have been thoughtfully renovated with designer-style fixtures, modern vanities, and crisp tilework for a spa-like feel. The spacious primary suite offers great scale and comfort, plus direct access to a private balcony perfect for morning coffee or evening downtime. Additional highlights include recessed lighting, wide-plank flooring, and a fresh, modern palette that complements the home’s abundant light.
Property Details
Price:
$5,850
MLS #:
26656755
Status:
Active
Beds:
2
Baths:
2
Type:
Single Family
Subtype:
Condominium
Neighborhood:
c01beverlyhills
Listed Date:
Feb 25, 2026
Finished Sq Ft:
1,400
Total Sq Ft:
1,400
Lot Size:
12,144 sqft / 0.28 acres (approx)
Year Built:
1962
Schools
Interior
Appliances
DW, MW, RF
Bathrooms
2 Full Bathrooms
Cooling
CA
Flooring
TILE, LAM
Heating
CF
Laundry Features
DINC, WINC
Levels
A
Exterior
Architectural Style
CNT
Common Walls
_1CW
Direction Faces
W
Parking Spots
2
Parking Total
2
Financial
Get Out There, A Simply Outgoing Approach to Life. James Outland Jr. is one of those rare people who simply has an outgoing approach to life. No matter the activity… from dune buggy riding to skydiving to motorcycling to riding the local Pismo Beach waves… James Outland Jr. approaches life with a “just get out there and do it” kind of attitude. A zest for Life. James’ zest for life is obviously apparent in his many exciting hobbies. In his spare time, he loves riding dune buggies or hi…
More About JamesMortgage Calculator
Map
Current real estate data for Single Family in Beverly Hills as of Apr 12, 2026
622
Single Family Listed
100
Avg DOM
844
Avg $ / SqFt
$5,756,936
Avg List Price
Community
- Address136 S Palm DR #301 Beverly Hills CA
- CityBeverly Hills
- CountyLos Angeles
- Zip Code90212
Similar Listings Nearby
Property Summary
- 136 S Palm DR #301 Beverly Hills CA is a Single Family for sale in Beverly Hills, CA, 90212. It is listed for $5,850 and features 2 beds, 2 baths, and has approximately 1,400 square feet of living space, and was originally constructed in 1962. The current price per square foot is $4. The average price per square foot for Single Family listings in Beverly Hills is $844. The average listing price for Single Family in Beverly Hills is $5,756,936. To schedule a showing of MLS#26656755 at 136 S Palm DR #301 in Beverly Hills, CA, contact your James Outland agent at 8057482262.
Courtesy of Clear Cut Realty. Disclaimer: All data relating to real estate for sale on this page comes from the Broker Reciprocity (BR) of the California Regional Multiple Listing Service. Detailed information about real estate listings held by brokerage firms other than James Outland include the name of the listing broker. Neither the listing company nor James Outland shall be responsible for any typographical errors, misinformation, misprints and shall be held totally harmless. The Broker providing this data believes it to be correct, but advises interested parties to confirm any item before relying on it in a purchase decision. Copyright 2026. California Regional Multiple Listing Service. All rights reserved. 136 S Palm DR #301
Beverly Hills, CA




























