$1,495,000
2148 Curtis St
Berkeley, CA, 94702
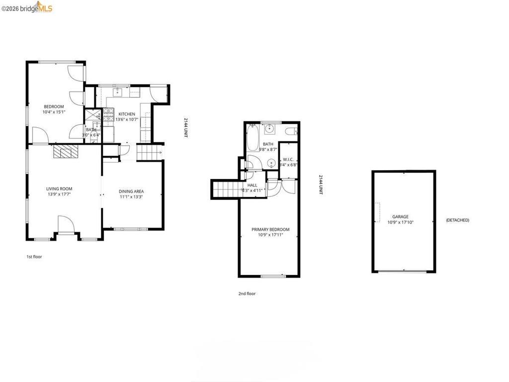
Charming fully vacant Central Berkeley Mediterranean duplex featuring arches, built-ins, tons of natural light, substantial renovations, and preserved Craftsman details throughout. Townhome-style units on either side of the garages each feature two bedrooms and two bathrooms with a split-level design so they live like single-family homes. The corner unit (2148) showcases gleaming original wood floors, a stylish fireplace, and an excellent floor plan. The living room flows seamlessly into a formal dining area and a fully renovated kitchen. The primary bedroom/bathroom suite sits atop a split-level staircase, with a second bedroom and bathroom below. The northern unit (2144) offers a similarly appealing layout with a fully renovated kitchen and numerous other upgrades throughout (list available). This unit also includes a large lower-level family room (not included in sq ft), along with interior access to an attached garage. The yard has been completely transformed into a tranquil garden oasis—ideal for entertaining or relaxing. Full seismic retrofit by Bay Area Retrofit. An incredible location situated in sought-after Poets Corner in Central Berkeley, the property is just 900 feet from Strawberry Creek Park and offers easy access to North Berkeley BART. 94 Walkscore. BESO score 1.
Property Details
Price:
$1,495,000
MLS #:
41128005
Status:
Active
Beds:
0
Baths:
0
Type:
Single Family
Subtype:
Duplex
Subdivision:
POETS CORNER
Listed Date:
Mar 31, 2026
Lot Size:
4,000 sqft / 0.09 acres (approx)
Year Built:
1925
Schools
Interior
Appliances
GWH
Flooring
TILE, LAM, WOOD, CARP
Heating
FF, FA
Laundry Features
DINC, WINC
Exterior
Parking Spots
2
Parking Total
2
Financial
Get Out There, A Simply Outgoing Approach to Life. James Outland Jr. is one of those rare people who simply has an outgoing approach to life. No matter the activity… from dune buggy riding to skydiving to motorcycling to riding the local Pismo Beach waves… James Outland Jr. approaches life with a “just get out there and do it” kind of attitude. A zest for Life. James’ zest for life is obviously apparent in his many exciting hobbies. In his spare time, he loves riding dune buggies or hi…
More About JamesMortgage Calculator
Map
Current real estate data for Single Family in Berkeley as of Apr 06, 2026
101
Single Family Listed
55
Avg DOM
492
Avg $ / SqFt
$1,468,944
Avg List Price
Community
- Address2148 Curtis St Berkeley CA
- SubdivisionPOETS CORNER
- CityBerkeley
- CountyAlameda
- Zip Code94702
Similar Listings Nearby
Property Summary
- Located in the POETS CORNER subdivision, 2148 Curtis St Berkeley CA is a Single Family for sale in Berkeley, CA, 94702. It is listed for $1,495,000 and features 0 beds, 0 baths, and has approximately 0 square feet of living space, and was originally constructed in 1925. The average price per square foot for Single Family listings in Berkeley is $492. The average listing price for Single Family in Berkeley is $1,468,944. To schedule a showing of MLS#41128005 at 2148 Curtis St in Berkeley, CA, contact your James Outland agent at 8057482262.
Courtesy of District Homes. Disclaimer: All data relating to real estate for sale on this page comes from the Broker Reciprocity (BR) of the California Regional Multiple Listing Service. Detailed information about real estate listings held by brokerage firms other than James Outland include the name of the listing broker. Neither the listing company nor James Outland shall be responsible for any typographical errors, misinformation, misprints and shall be held totally harmless. The Broker providing this data believes it to be correct, but advises interested parties to confirm any item before relying on it in a purchase decision. Copyright 2026. California Regional Multiple Listing Service. All rights reserved. 2148 Curtis St
Berkeley, CA































































































