$945,000
7990 San Gabriel RD
Atascadero, CA, 93422
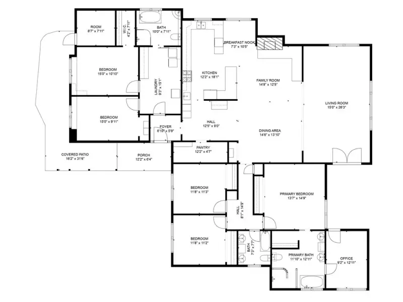
Welcome to this cherished 5 bedroom, 3 bathroom home offering nearly 3,000 square feet of comfortable living with timeless character and thoughtful updates throughout. Designed with a spacious open layout, the home is filled with natural light streaming through the numerous windows and features beautiful laminate flooring that flows through most of the home. Designed with flexibility in mind, the layout offers 2 bedrooms and a bathroom toward the front of the home, treat it like a junior ADU or leave it open to be part of the home. At the heart of the home is an expansive chef’s kitchen, complete with a commercial-grade stove, dual sinks, granite countertops, an abundance of cabinetry and a cozy dining nook with built-in bench seating and hidden storage — perfect for casual meals or morning coffee. Each of the five bedrooms offers generous space and unique charm, with two featuring delightful window seats with built-in storage. The 3 bathrooms exude vintage elegance with clawfoot tubs and stylish tile finishes, blending classic beauty with everyday function. The expansive primary suite offers a peaceful retreat, with a luxurious ensuite bath featuring a clawfoot tub, glass block shower and ample space to unwind. A connected bonus room — currently used as an office — provides added flexibility for your lifestyle needs. Step outside to enjoy the fully fenced backyard, a true outdoor haven complete with a lush olallieberry patch, raised garden beds, a large workshop and your own private pool and spa for year-round enjoyment. Perfectly located near schools and with quick freeway access, this home offers the ideal balance of convenience and coastal living. Homes like this don’t come around often—come experience the charm and space for yourself before it’s gone! Please review the Virtual Tour for more information.
Property Details
Price:
$945,000
MLS #:
NS25206743
Status:
Active
Beds:
5
Baths:
3
Type:
Single Family
Subtype:
Single Family Residence
Subdivision:
ATSouthwest50
Neighborhood:
atscatascadero
Listed Date:
Jan 9, 2026
Finished Sq Ft:
2,995
Lot Size:
18,000 sqft / 0.41 acres (approx)
Year Built:
1978
Schools
School District:
Atascadero Unified
Interior
Appliances
DW, GD, RF, GR, HOD, WHU
Bathrooms
3 Full Bathrooms
Cooling
NO
Flooring
TILE, LAM
Heating
FA
Laundry Features
IR
Exterior
Community Features
HIKI, BIKI
Other Structures
SHP
Roof
CON, TLE
Financial
Get Out There, A Simply Outgoing Approach to Life. James Outland Jr. is one of those rare people who simply has an outgoing approach to life. No matter the activity… from dune buggy riding to skydiving to motorcycling to riding the local Pismo Beach waves… James Outland Jr. approaches life with a “just get out there and do it” kind of attitude. A zest for Life. James’ zest for life is obviously apparent in his many exciting hobbies. In his spare time, he loves riding dune buggies or hi…
More About JamesMortgage Calculator
Map
Current real estate data for Single Family in Atascadero as of Jan 10, 2026
48
Single Family Listed
47
Avg DOM
435
Avg $ / SqFt
$744,002
Avg List Price
Community
- Address7990 San Gabriel RD Atascadero CA
- SubdivisionATSouthwest(50)
- CityAtascadero
- CountySan Luis Obispo
- Zip Code93422
Subdivisions in Atascadero
Similar Listings Nearby
Property Summary
- Located in the ATSouthwest(50) subdivision, 7990 San Gabriel RD Atascadero CA is a Single Family for sale in Atascadero, CA, 93422. It is listed for $945,000 and features 5 beds, 3 baths, and has approximately 2,995 square feet of living space, and was originally constructed in 1978. The current price per square foot is $316. The average price per square foot for Single Family listings in Atascadero is $435. The average listing price for Single Family in Atascadero is $744,002. To schedule a showing of MLS#ns25206743 at 7990 San Gabriel RD in Atascadero, CA, contact your James Outland agent at 8057482262.
Courtesy of Malik Real Estate Group, Inc.. Disclaimer: All data relating to real estate for sale on this page comes from the Broker Reciprocity (BR) of the California Regional Multiple Listing Service. Detailed information about real estate listings held by brokerage firms other than James Outland include the name of the listing broker. Neither the listing company nor James Outland shall be responsible for any typographical errors, misinformation, misprints and shall be held totally harmless. The Broker providing this data believes it to be correct, but advises interested parties to confirm any item before relying on it in a purchase decision. Copyright 2026. California Regional Multiple Listing Service. All rights reserved. 7990 San Gabriel RD
Atascadero, CA







































































