$579,000
915 Patria Lot 18
Atascadero, CA, 93422
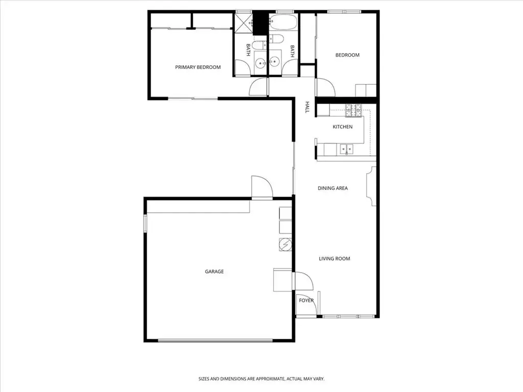
Believe your eyes! A rare SINGLE STORY two bedroom, two bath, two car garage home has become available. A central course unicorn property, this home is a single family detached residence in amazing condition in a small, well kept neighborhood with two parks on the south end of Atascadero with very low monthly HOA. Only the second owner, 915 Patria is in amazing condition with all the most important improvements and move-in ready. The HVAC system is less than two years old and so is all the venting. With a wonderful sense of arrival, an enclosed patio invites you in through the front door into an open concept living room, dining and spacious kitchen. The bedrooms are roomy and separated by each bathroom. At the back of the home is the quiet primary en suite far from the activity of the house and opening onto your back patio and lawn. Schedule your showing to see how the u-shape floor pan situates all the important living spaces around the back outdoor space, letting in great light. A large partially covered patio provides shady outdoor space for warm summer days and there’s a plenty of sunny patio and proper yard, too. Just enough to enjoy, play and garden without overwhelming your time at home with upkeep.
Property Details
Price:
$579,000
MLS #:
PI25265266
Status:
Active
Beds:
2
Baths:
2
Type:
Single Family
Subtype:
Single Family Residence
Subdivision:
ATSouth30
Neighborhood:
atscatascadero
Listed Date:
Nov 23, 2025
Finished Sq Ft:
985
Lot Size:
3,260 sqft / 0.07 acres (approx)
Year Built:
1993
Schools
School District:
Lucia Mar Unified
Interior
Bathrooms
2 Full Bathrooms
Cooling
CA, GAS
Laundry Features
GAS, IG
Exterior
Community Features
CRB, CW, DGP
Parking Spots
2
Financial
HOA Fee
$85
HOA Frequency
MO
Get Out There, A Simply Outgoing Approach to Life. James Outland Jr. is one of those rare people who simply has an outgoing approach to life. No matter the activity… from dune buggy riding to skydiving to motorcycling to riding the local Pismo Beach waves… James Outland Jr. approaches life with a “just get out there and do it” kind of attitude. A zest for Life. James’ zest for life is obviously apparent in his many exciting hobbies. In his spare time, he loves riding dune buggies or hi…
More About JamesMortgage Calculator
Map
Current real estate data for Single Family in Atascadero as of Dec 16, 2025
86
Single Family Listed
65
Avg DOM
439
Avg $ / SqFt
$742,056
Avg List Price
Community
- Address915 Patria Lot 18 Atascadero CA
- SubdivisionATSouth(30)
- CityAtascadero
- CountySan Luis Obispo
- Zip Code93422
Subdivisions in Atascadero
Similar Listings Nearby
Property Summary
- Located in the ATSouth(30) subdivision, 915 Patria Lot 18 Atascadero CA is a Single Family for sale in Atascadero, CA, 93422. It is listed for $579,000 and features 2 beds, 2 baths, and has approximately 985 square feet of living space, and was originally constructed in 1993. The current price per square foot is $588. The average price per square foot for Single Family listings in Atascadero is $439. The average listing price for Single Family in Atascadero is $742,056. To schedule a showing of MLS#pi25265266 at 915 Patria Lot 18 in Atascadero, CA, contact your James Outland agent at 8057482262.
Courtesy of eXp Realty of California, Inc.. Disclaimer: All data relating to real estate for sale on this page comes from the Broker Reciprocity (BR) of the California Regional Multiple Listing Service. Detailed information about real estate listings held by brokerage firms other than James Outland include the name of the listing broker. Neither the listing company nor James Outland shall be responsible for any typographical errors, misinformation, misprints and shall be held totally harmless. The Broker providing this data believes it to be correct, but advises interested parties to confirm any item before relying on it in a purchase decision. Copyright 2025. California Regional Multiple Listing Service. All rights reserved. 915 Patria Lot 18
Atascadero, CA
































