$1,248,000
9455 Hierba RD
Agua Dulce, CA, 91390
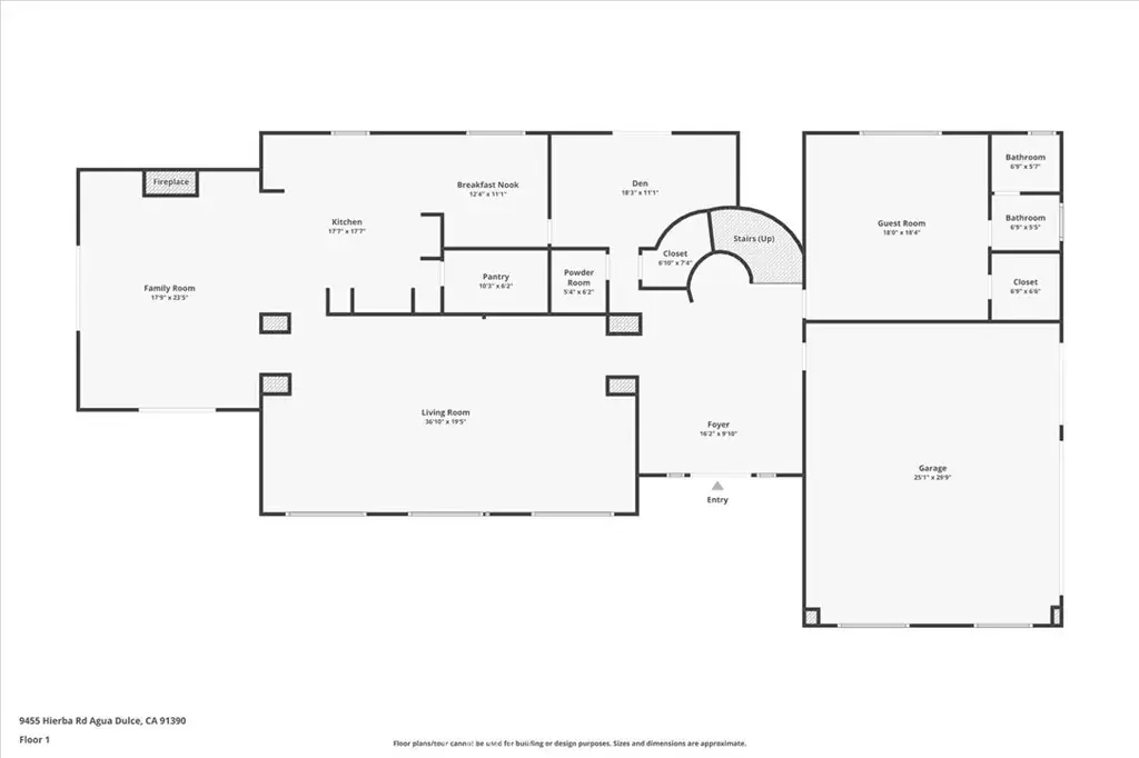
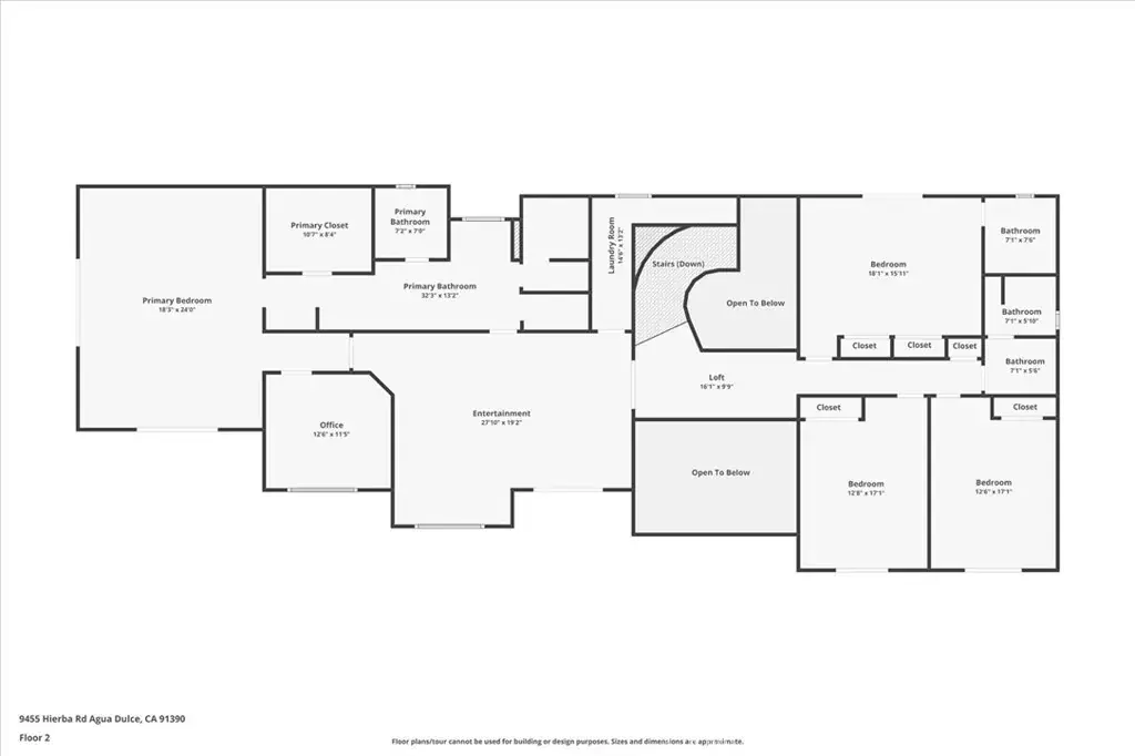
BEST PRICED SINGLE FAMILY HOME PER SQUARE FOOTAGE IN ALL OF AGUA DULCE! This is a INCREDIBLE HOMEOWNERSHIP OPPORTUNITY you do not want to miss. This Prime Agua Dulce location offers views, total privacy for a quiet & peaceful location while also being close to the winery & town conveniences. Come up the long secured & gated paved driveway entrance to visit this sprawling 5,794 square feet home & discover a motor courtyard area providing ample parking for all your guests to park with room to spare for your personal parking & storage needs. This home will greet you with a formal foyer entry space offering vaulted ceilings, wrought Iron spiral staircase banisters plus custom high-quality moldings & high-grade travertine tile throughout the downstairs of this home. This home features many larger windows offering a light & bright feel throughout the interior while also providing fantastic views of the beautiful Agua Dulce mountains, countryside & beyond. This home was built in 2007 with 5 bedrooms & 5 bathrooms plus an oversized 3 car garage & on over 6 acres of which approx. 1.5 is usable & flat with space to the south side of the home offering room for an entertainer’s pool. There are upgraded stainless steel appliances with a large Viking refrigerator, high quality updated & upgraded hardwood kitchen cabinetry, granite countertops throughout the kitchen & abundant amount of cabinet & storage space throughout the kitchen plus also providing a walk-in pantry. On one side of this home you will have a formal living room, family room & dining room space along with a breakfast room while on the other side having a generously sized downstairs bedroom & bathroom with a walk-in closet. Walk upstairs & you will find wood flooring throughout the upstairs of the home. The primary bedroom suite is on the south side of the home providing a large deck area with a large sitting room for a separate living space & a large bathroom off of the main bedroom that offers a spa / jacuzzi tub, separate shower & a possible steam room as well. There are several balconies/deck spaces for the bedrooms for outdoor living spaces while many bedrooms having their own on-suite bathrooms with large closets & larger windows for an open & bright living space. This is a uniquely designed home with a well thought out floor plan while providing exceptional features for the quality, materials & craftsmanship & price for the square foot value in the area! Public water company provides water service.
Property Details
Price:
$1,248,000
MLS #:
SR25008894
Status:
Active
Beds:
5
Baths:
5
Type:
Single Family
Subtype:
Single Family Residence
Subdivision:
Custom Agua Dulce CADUL
Neighborhood:
adulaguadulce
Listed Date:
Jan 24, 2025
Finished Sq Ft:
5,794
Lot Size:
270,712 sqft / 6.21 acres (approx)
Year Built:
2007
Schools
School District:
Acton-Agua Dulce Unified
Interior
Appliances
DW, GD, PR
Bathrooms
5 Full Bathrooms
Cooling
CA
Flooring
TILE
Heating
CF, FIR
Laundry Features
IN, PRO
Exterior
Architectural Style
CNT
Community Features
RUR, FHL, HRS, MTN, HIKI
Construction Materials
DWAL, FRM
Parking Spots
3
Roof
TLE
Financial
Get Out There, A Simply Outgoing Approach to Life. James Outland Jr. is one of those rare people who simply has an outgoing approach to life. No matter the activity… from dune buggy riding to skydiving to motorcycling to riding the local Pismo Beach waves… James Outland Jr. approaches life with a “just get out there and do it” kind of attitude. A zest for Life. James’ zest for life is obviously apparent in his many exciting hobbies. In his spare time, he loves riding dune buggies or hi…
More About JamesMortgage Calculator
Map
Current real estate data for Single Family in Agua Dulce as of Feb 15, 2026
22
Single Family Listed
109
Avg DOM
438
Avg $ / SqFt
$1,070,291
Avg List Price
Community
- Address9455 Hierba RD Agua Dulce CA
- SubdivisionCustom Agua Dulce (CADUL)
- CityAgua Dulce
- CountyLos Angeles
- Zip Code91390
Similar Listings Nearby
Property Summary
- Located in the Custom Agua Dulce (CADUL) subdivision, 9455 Hierba RD Agua Dulce CA is a Single Family for sale in Agua Dulce, CA, 91390. It is listed for $1,248,000 and features 5 beds, 5 baths, and has approximately 5,794 square feet of living space, and was originally constructed in 2007. The current price per square foot is $215. The average price per square foot for Single Family listings in Agua Dulce is $438. The average listing price for Single Family in Agua Dulce is $1,070,291. To schedule a showing of MLS#sr25008894 at 9455 Hierba RD in Agua Dulce, CA, contact your James Outland agent at 8057482262.
Courtesy of eXp Realty of California Inc. Disclaimer: All data relating to real estate for sale on this page comes from the Broker Reciprocity (BR) of the California Regional Multiple Listing Service. Detailed information about real estate listings held by brokerage firms other than James Outland include the name of the listing broker. Neither the listing company nor James Outland shall be responsible for any typographical errors, misinformation, misprints and shall be held totally harmless. The Broker providing this data believes it to be correct, but advises interested parties to confirm any item before relying on it in a purchase decision. Copyright 2026. California Regional Multiple Listing Service. All rights reserved. 9455 Hierba RD
Agua Dulce, CA







































































