$1,250,000
1680 Newhall Avenue
Cambria, CA, 93428
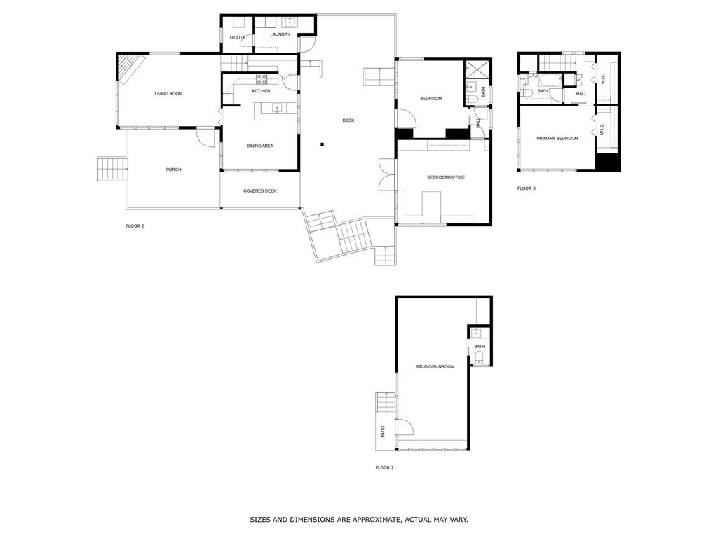
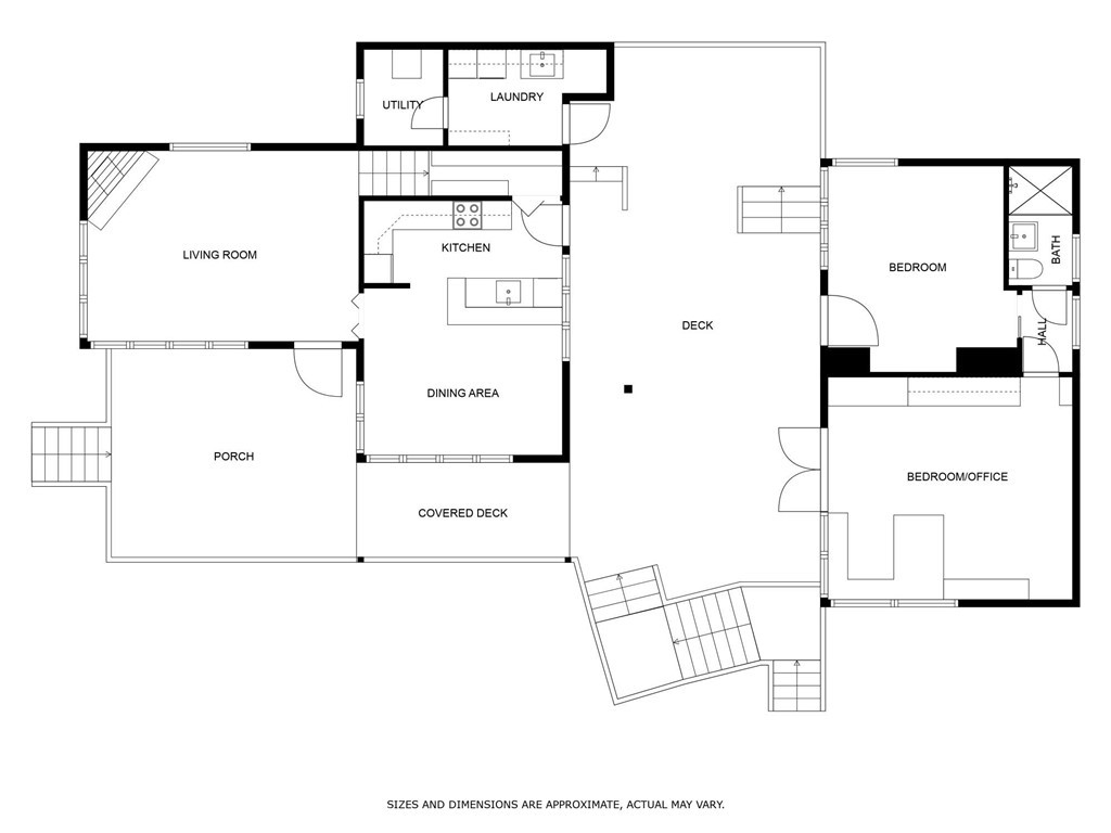
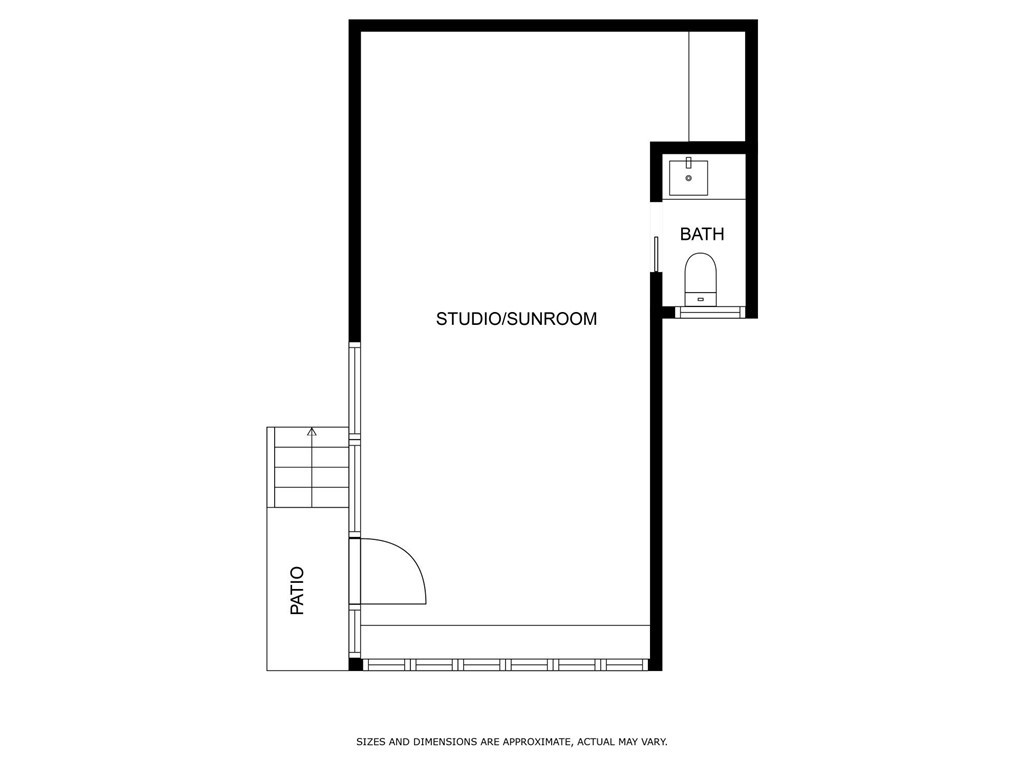
This home is a quintessential cottage in the woods and it is less than a mile from the ocean. Built upon 8 ocean view lots on Lodge Hill, this south facing home is surrounded by a secret garden of mature oaks, ferns and meandering pathways. It is an artistic cottage, beckoning you to create, to be a maker. Built in 1951 its most recent owner was Eleanor and Henry Kluck, a prolific and famous textile designer and an architect. This home inspires, it has an aura of creativity, it feels like a secret space in a hidden world. The large deck surrounding the home is an integral part of its function providing outdoor living space open to the sky, and access to the guest home and studio under the covered section. A giant Oak tree stands guard between the main home and the guest area. All of it has sweet ocean views. The home and guest home are a wonder of wood and have a feeling of yesteryear. Knotty pine wood walls, vaulted and beamed wood ceilings, and wood windows. A peek of ocean view is had from most windows. The main home has a corner brick fireplace in the living room, while just around the corner, the kitchen and dining room are combined into an open space with views to the deck, the trees, the sea. There is a walk-in pantry and a door to the deck. The primary suite is up one flight of stairs, providing wonderous views of the trees, gardens and ocean. Functional closets are tucked everywhere, hidden to look like the wood walls. Across the deck is the guest portion and studio of the property. Two Bedrooms, one bathroom in the guest quarters. Once again, wood walls, angled wood ceilings, clerestory windows, ocean view, and double French doors lead to the deck. Below this is a 425 sq ft art studio with half bathroom. Part of the studio is a glass atrium capturing sunlight and inspiration. Much of the property is undeveloped and private. There are two sheds for outdoor storage and many areas to sit in the sun or dappled sunlight.
Property Details
Price:
$1,250,000
MLS #:
SC25168708
Status:
Active Under Contract
Beds:
3
Baths:
3
Type:
Single Family
Subtype:
Single Family Residence
Subdivision:
Lodge Hill430
Neighborhood:
cambcambria
Listed Date:
Jul 30, 2025
Finished Sq Ft:
1,874
Lot Size:
8,750 sqft / 0.20 acres (approx)
Year Built:
1951
Schools
School District:
Coast Unified
Interior
Appliances
Dishwasher, Gas Range, Microwave, Refrigerator
Bathrooms
2 Full Bathrooms, 1 Half Bathroom
Cooling
None
Flooring
Carpet, Vinyl
Heating
Forced Air, Natural Gas, Wall Furnace
Laundry Features
Dryer Included, Washer Included
Exterior
Community Features
Biking, Dog Park, Fishing, Hiking, Horse Trails, Park, Watersports, Preserve/ Public Land, Rural
Construction Materials
Wood Siding
Exterior Features
Rain Gutters
Other Structures
Shed(s), Storage
Parking Features
Driveway, Asphalt
Parking Spots
0.00
Roof
Composition, Shingle
Financial
Get Out There, A Simply Outgoing Approach to Life. James Outland Jr. is one of those rare people who simply has an outgoing approach to life. No matter the activity… from dune buggy riding to skydiving to motorcycling to riding the local Pismo Beach waves… James Outland Jr. approaches life with a “just get out there and do it” kind of attitude. A zest for Life. James’ zest for life is obviously apparent in his many exciting hobbies. In his spare time, he loves riding dune buggies or hi…
More About JamesMortgage Calculator
Map
Current real estate data for Single Family in Cambria as of Sep 15, 2025
54
Single Family Listed
140
Avg DOM
927
Avg $ / SqFt
$1,590,172
Avg List Price
Community
- Address1680 Newhall Avenue Cambria CA
- NeighborhoodCAMB – Cambria
- SubdivisionLodge Hill(430)
- CityCambria
- CountySan Luis Obispo
- Zip Code93428
Subdivisions in Cambria
Similar Listings Nearby
Property Summary
- Located in the Lodge Hill(430) subdivision, 1680 Newhall Avenue Cambria CA is a Single Family for sale in Cambria, CA, 93428. It is listed for $1,250,000 and features 3 beds, 3 baths, and has approximately 1,874 square feet of living space, and was originally constructed in 1951. The current price per square foot is $667. The average price per square foot for Single Family listings in Cambria is $927. The average listing price for Single Family in Cambria is $1,590,172. To schedule a showing of MLS#sc25168708 at 1680 Newhall Avenue in Cambria, CA, contact your James Outland agent at 8057482262.
Courtesy of Re/Max Pines by the Sea. Disclaimer: All data relating to real estate for sale on this page comes from the Broker Reciprocity (BR) of the California Regional Multiple Listing Service. Detailed information about real estate listings held by brokerage firms other than James Outland include the name of the listing broker. Neither the listing company nor James Outland shall be responsible for any typographical errors, misinformation, misprints and shall be held totally harmless. The Broker providing this data believes it to be correct, but advises interested parties to confirm any item before relying on it in a purchase decision. Copyright 2025. California Regional Multiple Listing Service. All rights reserved. 1680 Newhall Avenue
Cambria, CA




































































